南北通透 商品房 中间楼层采光好 满五 临地铁 明厨明卫
-
73万
总价
-
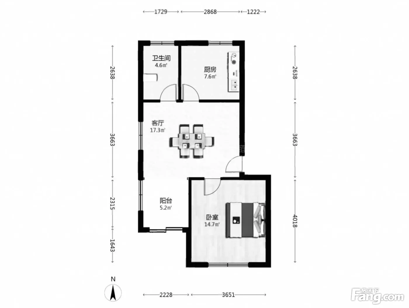
1室2厅1卫
户型
-
64㎡
建筑面积
买房加房产交流群,省钱不踩雷
3000+人正在热聊
-
单价
11406元/平米
- 挂牌价格解析
-
楼层
中层/6层
- 咨询楼层
-
套内
暂无数据
- 咨询套内使用面积
-
楼型
板楼
-
朝向
南北
-
装修
简装修
-
年代
2009
-
发布
2025-10-22
-
地铁
暂无数据
-
咨询总首付
首付约19.4万
首付税费及佣金情况 -
深度测评
小区云树仁居(浦东-泥城)
-
更多
楼户比、楼层高度、交易历史、抵押信息
-
核验码
202509765142
房源描述(1)
-
核心卖点问经纪人
相信为您的这套房子您一定会满意,赶快行动吧,先到先得! 房屋年代:2009年,朝向:南北,空间利用率高 小区简介: 1. 小区物业管理严格,服务到家让你生活放心 2. 小区人文素质高 3. 小区居住安静舒适,让您居住并享受品质生活中的 4. 小区绿化率高达,绿树成荫鸟语花香让您随时呼吸到新鲜空气
-
业主心态问经纪人
因业主生活工作均不在上海;现在在别的地方发展;诚心出售置换到工作所在地;非诚勿扰;拒绝倒江湖
-
小区配套问经纪人
位置:小区地理位置佳,绿化率高,居民素质高 配套:有健身器材,小型篮球场,可供小区居民使用 车位:停车位充足,建有地上停车场和地下车库 保安:小区内24保安巡逻
-
服务介绍问经纪人
本人从事房地产多年,公司有大量好房源,欢迎进入我的店铺查看,欢迎随时电话咨询,相信我的专业,为您置业安家保驾护航。
周边配套
交通综合评分
查看全部超过上海7.8%的小区
-
地铁公交
5.0
-
驾车出行
10.0
本月均价 13582元/m²
环比上月 持平
同比去年 下跌 21.84%
猜你喜欢
同小区其它房源
户型齐全,主打户型方正,明卫,明厨,主卧朝南二居
云树仁居户型主要有81平-104平的户型方正,明卫,明厨,主卧朝南的二居 、61平-62平的户型方正,明厨,明卫,客厅朝南,全明格局,主卧朝南的一居 、101平-105平的户型方正,明卫,明厨,双卧朝南,主卧朝南的三居 。
*获取完整户型报告,同时会有免费语音讲解服务
-
14188元/㎡
本月挂牌均价
-
持平
环比上月
买房加房产交流群,省钱不踩雷
3000+人正在热聊
- 免费咨询
- 专业服务
- 区域解读
- 户型分析

