新上中间楼层两房业主诚心卖看房方便,价可谈!
-
180万
总价
-
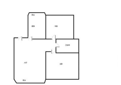
2室1厅1卫
户型
-
73.77㎡
建筑面积
买房加房产交流群,省钱不踩雷
3000+人正在热聊
-
单价
24400元/平米
- 挂牌价格解析
-
楼层
中层/6层
- 咨询楼层
-
套内
72.77㎡
- 咨询套内使用面积
-
朝向
南
-
装修
简装修
-
年代
1994
-
发布
2025-10-13
-
地铁
距2号线华夏东路站约1044米
-
咨询总首付
首付约45.7万
首付税费及佣金情况 -
深度测评
小区银凤小区(浦东-川沙)
-
更多
楼户比、楼层高度、交易历史、抵押信息
-
核验码
202510184941
房源描述(1)
-
核心卖点问经纪人
核心 房子是小区中间位置 不靠马路,楼层是中间楼层,配套的书包也是很好,看房方便。 户型介绍 此房户型为2室1厅1卫,南北通透,户型很好 。 税费解析 此房有契税。以上税费仅供参考,税费会因您的个人情况有所偏差。(以上税费仅为购房参考,不能作为最终购房依据,了解准确方案,请咨询) 交通出行 华夏东路(2号线);川沙(2号线)华夏东路站,步行过去很近。小区周边配套齐全。, 权属抵押 房屋抵押情况详情请咨询。 贷款情况 业主接受:均可。以上信息仅供参考,具体贷款信息请咨询。(贷款情况仅供参考,最终以实际情况为准) 周边配套 银行:中国农业银行(华夏二路支行)、上海农商银行(妙境路支行); 小区信息 该房源所在小区为银凤小区小区,小区建筑年代约为1994年,小区***25.0*,小区共37栋楼。以上信息仅供参考,具体小区信息请咨询。
-
业主心态问经纪人
房东置换,诚心出售,可以再谈,欢迎看房,随时恭候。
-
小区配套问经纪人
小区地理位置佳,绿化环境优越整洁,居民素质高,物业管理完善,适宜居住
-
服务介绍问经纪人
本人做房产多年,一直本着专业的房产知识,为您服务,我会在短的时间内帮您买好满意的房子,不让您错失任何好房子,更不让您每天为买房的事烦心,欢迎随时拨打我电话。
-
税费分析房贷计算
关于本房的税费信息情况,请电话联系我,我将详细的为您讲解!
-
户型解读问经纪人
房屋拥有相对宽松的尺寸,布局通透,动静分离,设计豪华
周边配套
交通综合评分
查看全部超过上海12.3%的小区
-
地铁公交
9.0
-
驾车出行
10.0
本月均价 24807元/m²
环比上月 持平
同比去年 下跌 21.44%
猜你喜欢
同小区其它房源
户型齐全,主打户型方正,明厨,明卫,客厅朝南三居
银凤小区户型主要有101平-107平的户型方正,明厨,明卫,客厅朝南的三居 、71平-71平的户型方正,明卫,明厨,主卧朝南的二居 。
*获取完整户型报告,同时会有免费语音讲解服务
-
32217元/㎡
本月挂牌均价
-
持平
环比上月
买房加房产交流群,省钱不踩雷
3000+人正在热聊
- 免费咨询
- 专业服务
- 区域解读
- 户型分析

