花园洋房二楼朝南整层,厨卫套内独用,全开间大钢窗采光好
-
400万
总价
-
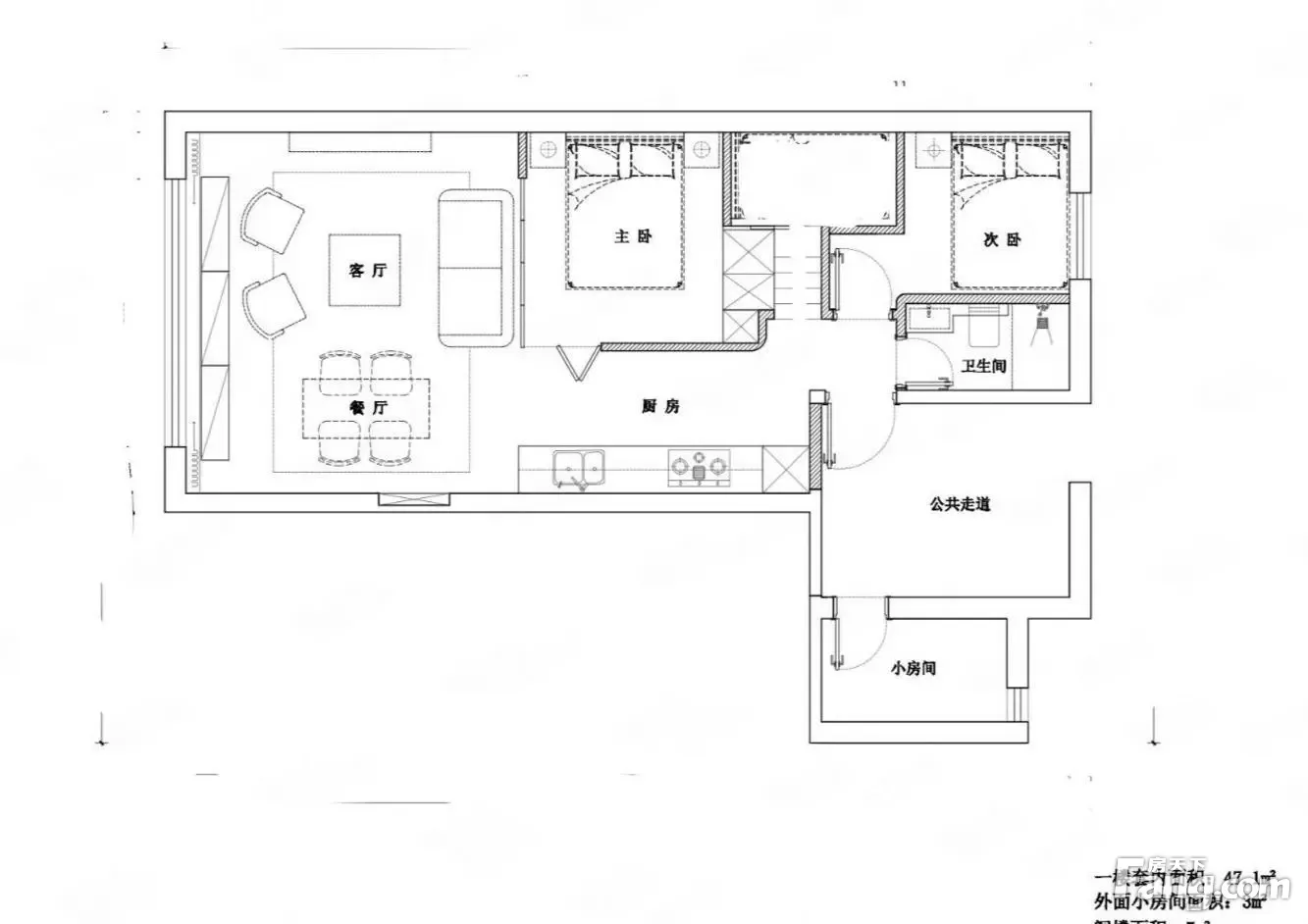
2室2厅1卫
户型
-
42㎡
建筑面积
买房加房产交流群,省钱不踩雷
3000+人正在热聊
-
单价
95238元/平米
- 挂牌价格解析
-
楼层
底层/3层
- 咨询楼层
-
套内
36.96㎡
- 咨询套内使用面积
-
楼型
砖楼
-
朝向
南北
-
装修
精装修
-
年代
1936
-
发布
2025-07-12
-
地铁
距1号线常熟路站约655米
-
咨询总首付
首付约99.8万
首付税费及佣金情况 -
深度测评
小区长乐路930弄小区(静安-静安寺)
-
更多
楼户比、楼层高度、交易历史、抵押信息
-
核验码
202307920414
房源描述(1)
-
核心卖点问经纪人
性质使用权,需上海户籍,不能贷款。 本案位于:长乐路930弄1-10号,看房提前预约。 更多房源信息,请点击我的头像,或加我号同步查看() 【温馨提示】:此房屋发布中显示的金额为工具自动计算,实际金额以交易中心核算为准。 规划介绍: 1、使用权的动迁房都位于市繁华地段的3楼以下的木质拎马桶的房子,在大上海一线都市必拆的,拆迁房! “十三五”期间,上海静安,黄浦,徐汇每年5000户以上的推进规模,计划拆除二级旧里以下房屋40万-60万平方米,各区受益居民5万户以上,目前均已基本完成,成片二级旧里的旧改征收! “十四五”计划将是全面完成各区零星地块二级旧里的旧改征收! 2、黄浦区“十四五”期间加速推进旧区改造,坚持把旧区改造作为民生、发展,多渠道、多途径、多方式地改善市民群众条件 全力打赢旧改攻坚战,加强市区联手、政企合作,全面统筹平衡好资金、房源、队伍,重点聚焦老城厢地区、北京东路地区、新天地-建国东路地区,完成旧改征收3万户以上,全面完成二级以下旧里改造,黄浦城区形态二元结构难题得到历史性收尾。 3、静安区今年将启动7幅地块的零星旧改,“十四五”期间将实现“清零行动”,全面收尾零星旧改,共将惠及5000多户居民。 旧改征收中所腾出的零星地块,将全部用于公建配套设施建设,更好地嵌入各类服务功能,丰富群众
-
业主心态问经纪人
业主心态:业主因置换需求,诚意出售此房产。手续完备,随时可看房,房主信任我,愿意双方友好沟通。我与业主关系良好,确保交易顺利进行 置换大房,诚意出售,到价即收钱,看房提前预约
-
小区配套问经纪人
小区居民素质高,配套设施齐全,地理位置好,交通便利。
-
服务介绍问经纪人
本人所发房源均为真实图片,有效在售,及时下架已售房源! 欢迎您双击我的头像照片,进入我的店铺浏览更多房源,请您拨打属于您自己的置业顾问,真诚期待您的来电! 作为房产经纪公司代表,我提供专业的协助
-
税费分析房贷计算
产权干净,税费清晰,欢迎来电咨询该房屋详情,静候您的来电!
周边配套
交通综合评分
查看全部超过上海6.5%的小区
-
地铁公交
10.0
-
城际交通
9.0
本月均价 92228元/m²
环比上月 持平
同比去年 下跌 15.89%
猜你喜欢
同小区其它房源
-
105015元/㎡
本月挂牌均价
-
持平
环比上月
买房加房产交流群,省钱不踩雷
3000+人正在热聊
- 免费咨询
- 专业服务
- 区域解读
- 户型分析


