一南一北户型,楼层适中,精装采光通透,可看可谈!
-
530万
总价
-
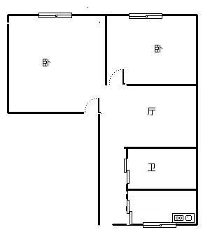
2室1厅1卫
户型
-
72.58㎡
建筑面积
买房加房产交流群,省钱不踩雷
3000+人正在热聊
加入群聊
-
单价
73023元/平米
- 挂牌价格解析
-
楼层
低层/24层
- 咨询楼层
-
套内
暂无数据
- 咨询套内使用面积
-
楼型
板楼
-
朝向
南
-
装修
精装修
-
年代
1995
-
发布
2025-12-12
-
地铁
距7号线昌平路站约429米
-
咨询总首付
首付约174.5万
首付税费及佣金情况 -
深度测评
小区锦安公寓(静安-曹家渡)
-
更多
楼户比、楼层高度、交易历史、抵押信息
-
核验码
202408976661
房源描述(1)
周边配套
地址:延平路340弄
交通综合评分
查看全部8.9
“较好”
超过上海62.9%的小区
-
地铁公交
10.0
-
驾车出行
7.0
-
城际交通
9.5
本月均价 73819元/m²
环比上月 持平
同比去年 下跌 7.61%
猜你喜欢
同小区其它房源
户型齐全,主打户型方正,明厨二居
锦安公寓户型主要有72平-111平的户型方正,明厨的二居 、53平-53平的户型方正,明厨,明卫的一居 、124平-131平的户型方正,明厨,明卫,客厅朝南,全明格局的三居 。
*获取完整户型报告,同时会有免费语音讲解服务
买房加房产交流群,省钱不踩雷
3000+人正在热聊
加入群聊
- 免费咨询
- 专业服务
- 区域解读
- 户型分析
免责声明:房源信息由网站用户提供,其真实性、合法性由信息提供者负责,最终以政府部门登记备案为准。本网站不声明或保证内容之正确性和可靠性,购买该房屋时,请谨慎核查。入学情况仅凭历史经验总结,在此不承诺升学事宜。请您在签订合同之前,切勿支付任何形式的费用,以免上当受骗。

