双天井一梯两户南北通透全明的两室一厅房型太好了!
-
46万
总价
-
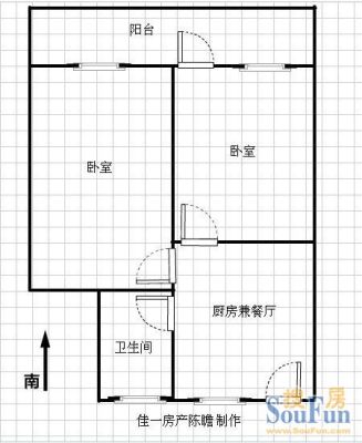
2室1厅1卫
户型
-
49.5㎡
建筑面积
买房加房产交流群,省钱不踩雷
3000+人正在热聊
-
单价
9293元/平米
- 挂牌价格解析
-
楼层
底层/4层
- 咨询楼层
-
套内
暂无数据
- 咨询套内使用面积
-
楼型
板楼
-
朝向
南
-
装修
简装修
-
年代
1996
-
发布
2025-04-17
-
咨询总首付
首付约12.4万
首付税费及佣金情况 -
深度测评
小区新海农场(崇明-崇明其他)
-
更多
楼户比、楼层高度、交易历史、抵押信息
-
核验码
20250302196747
房源描述(1)
-
核心卖点问经纪人
新海镇新海农场是崇明八大农场中热闹的一个农场,这里有超市、菜场、医院、银行、邮局、派出所、税务所、中小xue校、等别的农场中有的这里都有,别的农场中没有的这里也有,————每逢六日还有集市,真是 热闹非凡!
-
业主心态问经纪人
这是以前知情留下的上海产权房,房子虽小但根据上海政策也和市区一样的,虽然房东不是很急着卖,但是没办法必须把这套房子卖掉了才能在别的地方购房,如果您看中了房子可以和房东直接谈价钱,房价是透明的,肯定会让您买的安心、放心、称心! 点击我的头像查看更多房源!选择我们是咱们的缘份!
-
小区配套问经纪人
鸿途房产——总店位于崇明城桥镇(南门)北门路49号,另外在东风农场场部、森林公园旁风伟新村、长征农场等地还设有店,是十几年的老店! 本店主营崇明八大农场和南门的房子,想了解更多欢迎来电详询或点击我的头像进入我的店铺。 您来我店可在宝杨或石洞口码头乘船也可坐公交,浦西:地铁一号线汶水路站乘申崇三线,浦东:地铁六号线五洲大道站乘申崇六线来南门,到站后我们会有专车接您带您免费看房。 为您选房配房——满意议价——签合同付定金—查阅纳税——交易过户——交房拿钥匙
-
服务介绍问经纪人
鸿途房产——总店位于崇明城桥镇(南门)北门路49号,另外在东风农场场部、森林公园旁风伟新村、长征农场等地还设有店,是十几年的老店房产的! 本店主营崇明八大农场和南门的房子,想了解更多欢迎来电详询
-
税费分析房贷计算
如果房东没有其他住房并且此房已满五年,购房者只需交自己的契税就可以了。如果购房者名下无房交1%的契税,如果购房者是购买第二套住房就要缴纳3%的契税了。
周边配套
交通综合评分
查看全部超过上海19.9%的小区
-
地铁公交
5.0
本月均价 4895元/m²
环比上月 持平
同比去年 下跌 47.55%
-
9743元/㎡
本月挂牌均价
-
持平
环比上月
买房加房产交流群,省钱不踩雷
3000+人正在热聊
- 免费咨询
- 专业服务
- 区域解读
- 户型分析

