西凌新邨1室精装修企业房源
-
220万
总价
-
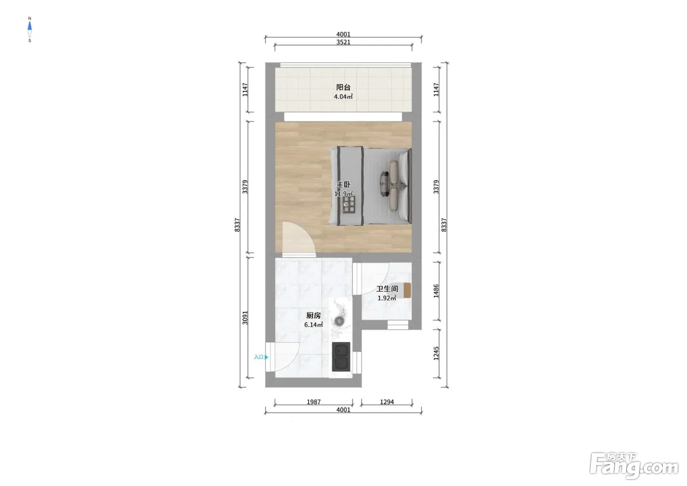
1室1卫
户型
-
27.85㎡
建筑面积
买房加房产交流群,省钱不踩雷
3000+人正在热聊
-
单价
78995元/平米
- 挂牌价格解析
-
楼层
高层/7层
- 咨询楼层
-
套内
暂无数据
- 咨询套内使用面积
-
楼型
板楼
-
朝向
北
-
装修
精装修
-
年代
1987
-
发布
2025-03-21
-
地铁
距4号线西藏南路站约509米
-
咨询总首付
首付约55.1万
首付税费及佣金情况 -
深度测评
小区西凌新邨(黄浦-蓬莱公园)
-
更多
楼户比、楼层高度、交易历史、抵押信息
-
核验码
202102205777
房源描述(1)
-
核心卖点问经纪人
相信为您的这套房子您一定会满意,赶快行动吧,先到先得! 房屋年代∶1987,面积∶27.85平方米,朝向∶北 1. 小区配备高端物业管理,让你享受宾至如归的服务; 2. 小区人文素质高,是您的居家的绝佳选择; 3. 小区居住安静舒适,让您拥有高品质的生活环境; 4. 小区绿化率高,绿树成荫鸟语花香让您随时呼吸到新鲜空气。
-
小区配套问经纪人
【轨道交通】:4/8号线西藏南路站,4号线鲁班站,13号线世博园站,9/13号线马当路、8/9号线陆家浜路、10/13号线新天地 【出门配套】日月光,田子坊,新邻生活广场,世博滨江,老西门、城隍庙,南京步行街 【配套】荷花池幼.儿.园,爱童幼.儿.园,思南幼.儿.园,师专附,小海华小學卢湾实.验比乐中.学,卢湾中學等优.质 【医疗配套】上海市第九人民(三级甲等)、瑞金卢湾分院(二级甲等),田子坊医.院 【商业配套】上海银行,建设银行,邮政银行,平安银行,中国银行、工商银行;香港龙凤楼、凯德晶萃地下商业广场,汇景生活广场,联华超市,静安面包坊,蔡先生传统小吃,赛百味,智造局创业园等
-
服务介绍问经纪人
本人刘文昌2015年正式在上海从事行业今。精通行业的所有专业流程和客户需求的房源配比!主营上海以及上海周边的一手房和上海中高端二手房操作业务。我的宗旨:想您所想!排您所优!归锦明房地产
周边配套
交通综合评分
查看全部超过上海23.1%的小区
-
地铁公交
10.0
-
城际交通
5.0
本月均价 82674元/m²
环比上月 持平
同比去年 下跌 9.32%
猜你喜欢
同小区其它房源
户型齐全,主打户型方正,明厨一居
西凌新邨户型主要有25平-50平的户型方正,明厨的一居 、46平-94平的户型方正,明厨,明卫的二居 、92平-106平的户型方正,明厨,客厅朝南的三居 。
*获取完整户型报告,同时会有免费语音讲解服务
买房加房产交流群,省钱不踩雷
3000+人正在热聊
- 免费咨询
- 专业服务
- 区域解读
- 户型分析


