宽敞舒适的毕加索花园小镇大户型,五房南向好采光
-
350万元
总价
-
5室2厅3卫
户型
-
210.25㎡
建筑面积
买房加房产交流群,省钱不踩雷
3000+人正在热聊
加入群聊
-
单价
16647元/平米
- 挂牌价格解析
-
楼层
底层/5层
- 咨询楼层
-
套内
暂无数据
- 咨询套内使用面积
-
朝向
南
-
发布
2025-02-20
-
咨询总首付
首付约108.1万
首付税费及佣金情况 -
深度测评
小区毕加索花园小镇(金山-亭林)
-
更多
楼户比、楼层高度、交易历史、抵押信息
业主自评
-
soufun-s1112739445
加入房天下4193天
接电时间:09:00-22:00
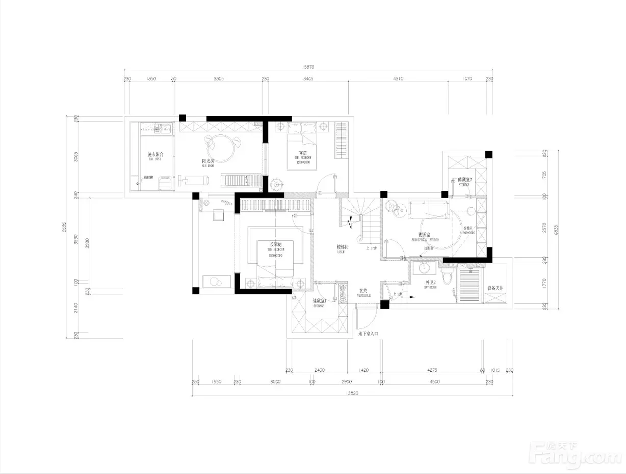
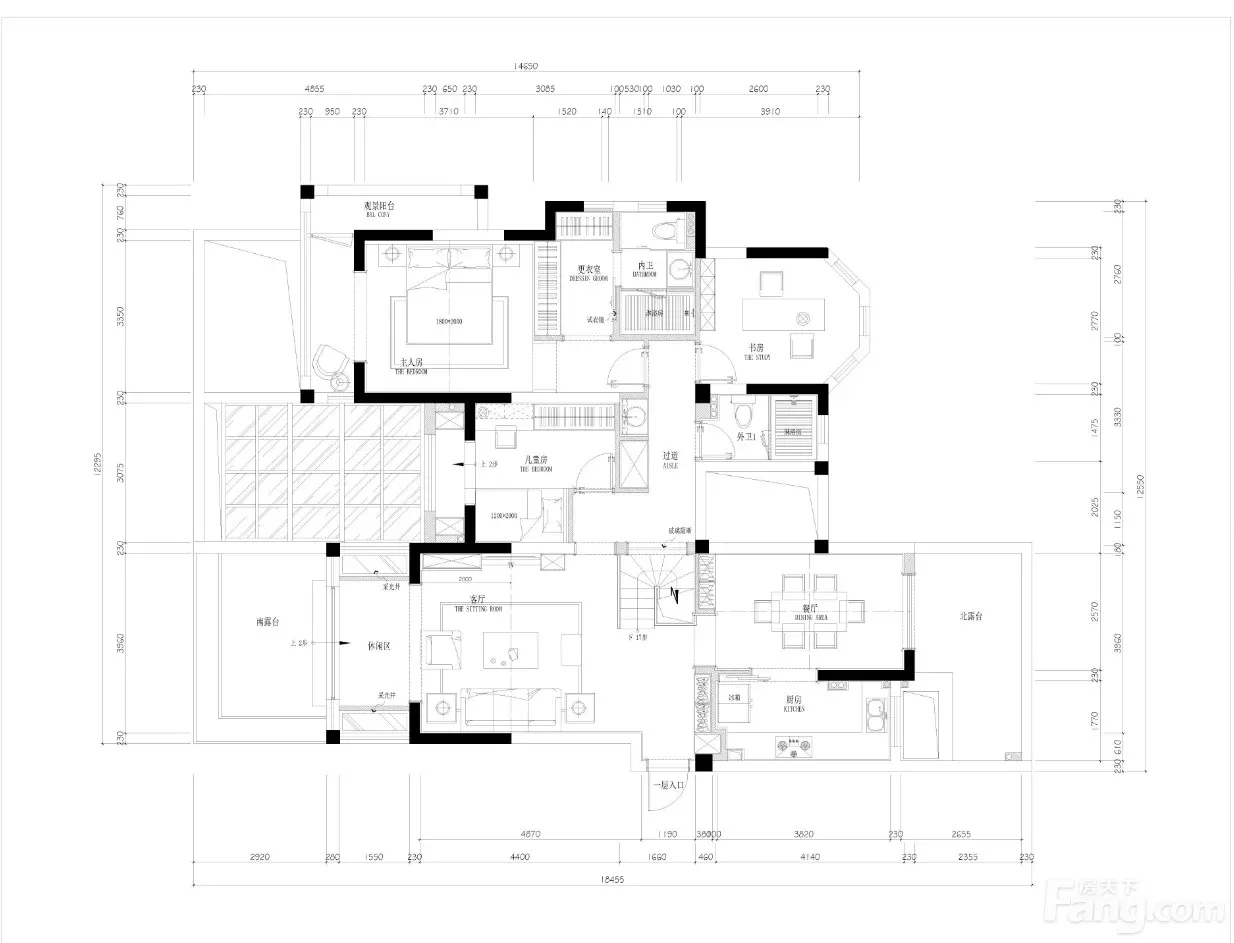
这套位于毕加索花园小镇的房子真是有够宽敞的,总建筑面积达到了210.25平米,五室两厅三卫的布局非常适合大家庭居住。房子朝南,采光特别好,阳光洒满每个角落,让你感觉特别舒适和温馨。房子的价格是350万元,考虑到它的面积和位置,这真是个不错的选择。小区位于康德路358弄,地处东贤路的路口,周围生活设施完善,日常购物、休闲都很方便,特别适合居家生活。毕加索花园小镇是个安静的小区,居住在这里可以享受到生活的宁静。物业类型是住宅,居住环境整洁,绿化也很不错,适合追求品质生活的家庭。不管是从房子的空间设计,还是从它的地理位置,这都是一处值得考虑的房产。如果你和你的家人正在寻找一个大空间、南向采光好的房子,欢迎来看看这套房子,它可能正是你们理想的家园。
这套位于毕加索花园小镇的房子真是有够宽敞的,总建筑面积达到了210.25平米,五室两厅三卫的布局非常适合大家庭居住。房子朝南,采光特别好,阳光洒满每个角落,让你感觉特别舒适和温馨。房子的价格是350万元,考虑到它的面积和位置,这真是个不错的选择。小区位于康德路358弄,地处东贤路的路口,周围生活设施完善,日常购物、休闲都很方便,特别适合居家生活。毕加索花园小镇是个安静的小区,居住在这里可以享受到生活的宁静。物业类型是住宅,居住环境整洁,绿化也很不错,适合追求品质生活的家庭。不管是从房子的空间设计,还是从它的地理位置,这都是一处值得考虑的房产。如果你和你的家人正在寻找一个大空间、南向采光好的房子,欢迎来看看这套房子,它可能正是你们理想的家园。
周边配套
地址:康德路358弄(东贤路路口)
交通综合评分
查看全部5.0
“一般”
超过上海94.7%的小区
-
地铁公交
5.0
-
驾车出行
10.0
本月均价 13783元/m²
环比上月 持平
同比去年 上涨 21.49%
猜你喜欢
同小区其它房源
-
12175元/㎡
本月挂牌均价
-
持平
环比上月
买房加房产交流群,省钱不踩雷
3000+人正在热聊
加入群聊
联系业主
免责声明:房源信息由网站用户提供,其真实性、合法性由信息提供者负责,最终以政府部门登记备案为准。本网站不声明或保证内容之正确性和可靠性,购买该房屋时,请谨慎核查。入学情况仅凭历史经验总结,在此不承诺升学事宜。请您在签订合同之前,切勿支付任何形式的费用,以免上当受骗。

