天泰圣罗尼克 5室2厅 南
-
270万
总价
-
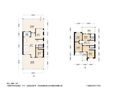
5室2厅
户型
-
298㎡
建筑面积
买房加房产交流群,省钱不踩雷
3000+人正在热聊
加入群聊
-
单价
9061元/平米
- 挂牌价格解析
-
楼层
低楼层/3层
- 咨询楼层
-
套内
暂无数据
- 咨询套内使用面积
-
朝向
南
-
装修
毛坯
-
供暖
集中供暖
-
发布
2025-11-09
-
咨询总首付
首付约126.2万
首付税费及佣金情况 -
深度测评
小区天泰圣罗尼克(即墨-温泉镇)
-
更多
楼户比、楼层高度、交易历史、抵押信息
交通综合评分
查看全部2.0
“一般”
超过青岛29.0%的小区
-
地铁公交
5.0
本月均价 8656元/m²
环比上月 上涨 1.5%
同比去年 下跌 10.65%
猜你喜欢
同小区其它房源
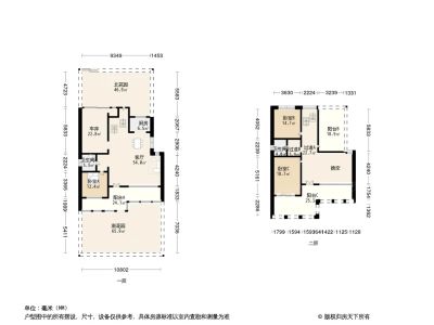
户型齐全,主打户型方正,明厨,明卫,客厅朝南,全明格局,主卧朝南二居
户型主要有95平-115平的户型方正,明厨,明卫,客厅朝南,全明格局,主卧朝南的二居 、103平-251平的户型方正,明厨,客厅朝南,双阳台的三居 、245平-302平的客厅朝南的四居 。
*获取完整户型报告,同时会有免费语音讲解服务
-
11597元/㎡
本月挂牌均价
-
0.01%
环比上月
买房加房产交流群,省钱不踩雷
3000+人正在热聊
加入群聊
免责声明:房源信息由网站用户提供,其真实性、合法性由信息提供者负责,最终以政府部门登记备案为准。本网站不声明或保证内容之正确性和可靠性,购买该房屋时,请谨慎核查。入学情况仅凭历史经验总结,在此不承诺升学事宜。请您在签订合同之前,切勿支付任何形式的费用,以免上当受骗。



