盛世江山南区2室南北通透 地铁口实中 随时看房诚心卖
-
115万
总价
-
2室2厅1卫
户型
-
97.02㎡
建筑面积
买房加房产交流群,省钱不踩雷
3000+人正在热聊
-
单价
11853元/平米
- 挂牌价格解析
-
楼层
中层/27层
- 咨询楼层
-
套内
96.02㎡
- 咨询套内使用面积
-
楼型
板楼
-
朝向
南北
-
装修
精装修
-
年代
2012
-
发布
2026-01-18
-
地铁
距6号线九顶山站约274米
-
咨询总首付
首付约45.1万
首付税费及佣金情况 -
深度测评
小区盛世江山(黄岛-石油大学)
-
更多
楼户比、楼层高度、交易历史、抵押信息
房源描述(1)
-
核心卖点问经纪人
相信为您的这套房子您一定会满意,赶快行动吧,先到先得! 房屋年代:2010年,朝向:南北,空间利用率高 小区简介: 1. 小区物业管理严格,到家让你生活放心 2. 小区人文素质高 3. 小区居住安静舒适,让您居住并享受品质生活中的 4. 小区绿化率高达,绿树成荫鸟语花香让您随时呼吸到新鲜空气
-
业主心态问经纪人
业主很信任我,我能了解业主卖房新的动态。目前市场交易量平稳,政策已经基本稳定,是 入手的好时候。请性价比高的好房。
-
小区配套问经纪人
位置:小区地理位置佳,绿化率高,居民素质高 配套:有健身器材,小型篮球场,可供小区居民使用 车位:停车位充足,建有地上停车场和地下车库 保安:小区内24保安巡逻
-
服务介绍问经纪人
本人从事房地产多年,公司有大量好房源,欢迎进入我的店铺查看,欢迎随时电话咨询,相信我的,为您置业安家保驾护航。
-
税费分析房贷计算
契税:普通住宅‘’首套二套140平以内1% ;首套140以上平收1.5%;二套收2%;三套以上收3%。 个税:普通住宅,在房产证满二不满五或者满五不,需要收取2%个税。
-
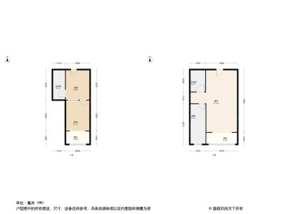
户型解读问经纪人
房屋拥有相对宽松的尺寸,布局通透,动静分离,设计豪华
周边配套
交通综合评分
查看全部超过青岛36.7%的小区
-
地铁公交
10.0
本月均价 12592元/m²
环比上月 下跌 1.08%
同比去年 下跌 14.61%
猜你喜欢
同小区其它房源
户型齐全,主打户型方正二居
盛世江山户型主要有51平-121平的户型方正的二居 、111平-177平的户型方正,明厨的三居 、56平-75平的户型方正,双阳台,主卧朝南的一居 。
*获取完整户型报告,同时会有免费语音讲解服务
-
15235元/㎡
本月挂牌均价
-
0.79%
环比上月
买房加房产交流群,省钱不踩雷
3000+人正在热聊
- 免费咨询
- 专业服务
- 区域解读
- 户型分析


