金湖地铁+欧式高层电梯房,户型方正,滨湖路+14
-
300万
总价
-
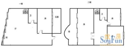
4室2厅2卫
户型
-
205㎡
建筑面积
买房加房产交流群,省钱不踩雷
3000+人正在热聊
-
单价
14635元/平米
- 挂牌价格解析
-
楼层
高楼层/34层
- 咨询楼层
-
套内
暂无数据
- 咨询套内使用面积
-
楼型
板楼
-
朝向
南北
-
装修
精装
-
供暖
暂无数据
-
年代
2008
-
发布
2025-07-27
-
地铁
距1号线金湖广场站约575米
-
深度测评
小区建兴苑(青秀-金湖片区)
-
更多
楼户比、楼层高度、交易历史、抵押信息
房源描述(2)
-
核心卖点问经纪人
1.房子户型方正,格局安排合理。 2.房子精装修,拎包可入住。 3.老城区商圈,出门即可享吃喝玩乐一体化生活。 4.交通出行方便,有各个公交线。 5.出租容易。拥有地铁口,可用来居然或办公都方便。
-
业主心态问经纪人
业主很信任我,我能了解业主卖房新的动态。目前市场交易量平稳,政策已经基本稳定,是市场触底入手的好时候。请不要错过性价比高的好房。
-
小区配套问经纪人
附近配套设施齐全,近地铁口,南湖公园,民歌湖等,交通便利,附近有万象城、航洋城、地王等各大商圈和地标性建筑物,周边配套极其成熟
-
服务介绍问经纪人
本人做房产多年,本着专业的房产知识,为您服务,我会在短的时间内帮您买好满意的房子,不让您错失任何好房子,更不让您每天为买房的事烦心,欢迎随时联系!
-
税费分析房贷计算
税费信息: 1.90平米以下契税是房屋总价1个点,90平米以上契税为1.5个点 2.满五的房源免除个税
-
核心卖点问经纪人
房屋情况介绍: 1:业主卖房,看房方便 2:方便的购物场所是您生活的保障 3:的价格为您辛苦的积蓄作个便捷的理财 4:方便健康的饮食环境是您生活的保障 提醒: 可能此房信息不够详细,如有任何问题请与我联系,我会根据您的需求,当前市场价位,房产市场走势,给您推荐合适房子 顺祝您身体健康、工作顺利
-
业主心态问经纪人
业主很信任我,我能了解业主卖房新的动态。目前市场交易量平稳,政策已经基本稳定,是市场触底入手的好时候。请不要错过性价比高的好房。
-
小区配套问经纪人
。
-
服务介绍问经纪人
本人做房产多年,本着专业的房产知识,为您服务,我会在短的时间内帮您买好满意的房子,不让您错失任何好房子,更不让您每天为买房的事烦心,欢迎随时联系!
周边配套
交通综合评分
查看全部超过南宁64.5%的小区
-
地铁公交
10.0
本月均价 17318元/m²
环比上月 上涨 2.29%
同比去年 下跌 6.05%
猜你喜欢
同小区其它房源
户型齐全,主打户型方正,明厨,双阳台四居
建兴苑户型主要有198平-257平的户型方正,明厨,双阳台的四居 、210平-261平的户型方正的五居 。
*获取完整户型报告,同时会有免费语音讲解服务
-
12280元/㎡
本月挂牌均价
-
0.26%
环比上月
买房加房产交流群,省钱不踩雷
3000+人正在热聊
- 免费咨询
- 专业服务
- 区域解读
- 户型分析


