金湖地铁口,世纪商都,实用大1+1房,滨湖+14
-
180万
总价
-
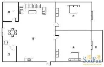
2室2厅
户型
-
100.57㎡
建筑面积
买房加房产交流群,省钱不踩雷
3000+人正在热聊
加入群聊
-
单价
17898元/平米
- 挂牌价格解析
-
楼层
高楼层/18层
- 咨询楼层
-
套内
74.97㎡
- 咨询套内使用面积
-
楼型
板塔结合
-
朝向
南北
-
装修
其他
-
供暖
暂无数据
-
发布
2022-01-24
-
地铁
距1号线金湖广场站约391米
-
深度测评
小区世纪商都(青秀-金湖片区)
-
更多
楼户比、楼层高度、交易历史、抵押信息
周边配套
地址:金浦路7号
交通综合评分
查看全部4.0
“一般”
超过南宁30.0%的小区
-
地铁公交
10.0
本月均价 22261元/m²
环比上月 上涨 1.43%
同比去年 下跌 8.05%
猜你喜欢
同小区其它房源
-
12126元/㎡
本月挂牌均价
-
0.24%
环比上月
买房加房产交流群,省钱不踩雷
3000+人正在热聊
加入群聊
免责声明:房源信息由网站用户提供,其真实性、合法性由信息提供者负责,最终以政府部门登记备案为准。本网站不声明或保证内容之正确性和可靠性,购买该房屋时,请谨慎核查。入学情况仅凭历史经验总结,在此不承诺升学事宜。请您在签订合同之前,切勿支付任何形式的费用,以免上当受骗。



