南宁市青秀区东方花园大户型业主急卖
-
193万
总价
-
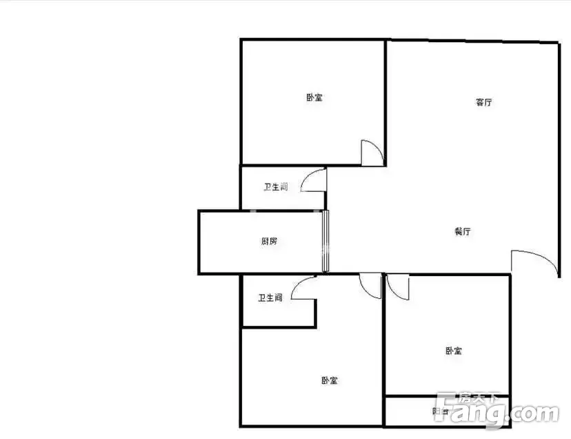
3室2厅2卫
户型
-
111㎡
建筑面积
买房加房产交流群,省钱不踩雷
3000+人正在热聊
加入群聊
-
单价
17388元/平米
- 挂牌价格解析
-
楼层
高楼层/8层
- 咨询楼层
-
套内
暂无数据
- 咨询套内使用面积
-
楼型
板塔结合
-
朝向
南
-
装修
其他
-
供暖
暂无数据
-
年代
2005
-
发布
2024-01-05
-
地铁
距1号线南湖站约380米
-
深度测评
小区东方花园(青秀-金湖片区)
-
更多
楼户比、楼层高度、交易历史、抵押信息
周边配套
地址:嘉宾路8号
交通综合评分
查看全部4.0
“一般”
超过南宁88.3%的小区
-
地铁公交
10.0
本月均价 17446元/m²
环比上月 下跌 0.96%
同比去年 下跌 3.22%
猜你喜欢
同小区其它房源
户型齐全,主打户型方正,明卫,客厅朝南,主卧朝南三居
东方花园户型主要有110平-144平的户型方正,明卫,客厅朝南,主卧朝南的三居 、143平-145平的户型方正,明卫,明厨,客厅朝南,双阳台,双卧朝南的四居 。
*获取完整户型报告,同时会有免费语音讲解服务
-
12058元/㎡
本月挂牌均价
-
0.56%
环比上月
买房加房产交流群,省钱不踩雷
3000+人正在热聊
加入群聊
免责声明:房源信息由网站用户提供,其真实性、合法性由信息提供者负责,最终以政府部门登记备案为准。本网站不声明或保证内容之正确性和可靠性,购买该房屋时,请谨慎核查。入学情况仅凭历史经验总结,在此不承诺升学事宜。请您在签订合同之前,切勿支付任何形式的费用,以免上当受骗。



