165平毛坯大五房 南北通透高层 满二仅68万 急售可谈
-
68万
总价
-
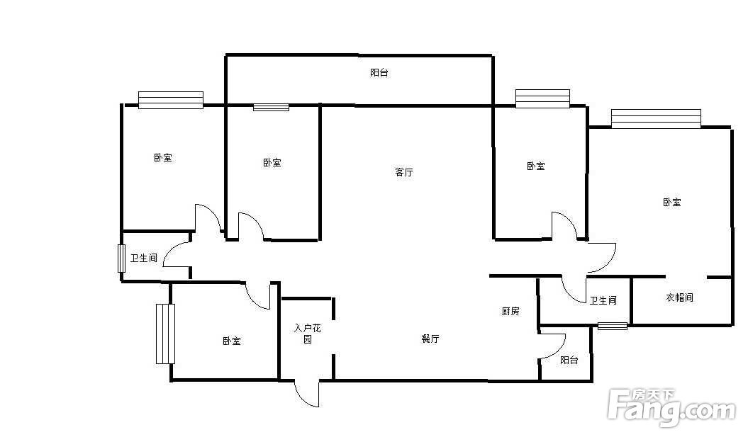
5室2厅3卫
户型
-
165.83㎡
建筑面积
买房加房产交流群,省钱不踩雷
3000+人正在热聊
-
单价
4101元/平米
- 挂牌价格解析
-
楼层
高层/33层
- 咨询楼层
-
套内
120㎡
- 咨询套内使用面积
-
楼型
板楼
-
朝向
南北
-
装修
毛坯
-
年代
2021
-
发布
2026-02-25
-
深度测评
小区建工城(良庆-玉洞片区)
-
更多
楼户比、楼层高度、交易历史、抵押信息
房源描述(1)
-
核心卖点问经纪人
**** 这套位于南宁良庆玉洞片区平乐大道59号建工城的住宅,建筑面积达165.83平米,为五室两厅三卫一厨两阳台的宽敞户型,满足大家庭或改善型居住需求。2021年建成的毛坯房,可自由规划装修风格,南北朝向确保室内通透采光,高层位置视野开阔,居住舒适度高。 房源总价仅68万,折合单价4101元/平米,性价比突出。满二产权清晰,交易税费低,33层总楼层中的高层位置兼具私密性与视野优势。建工城作为良庆区新兴住宅区,周边配套逐步完善,适合注重空间与实用性的购房者。
-
业主心态问经纪人
业主很信任我,我能了解业主卖房新的动态。目前市场交易量平稳,政策已经基本稳定,是市场触底入手的好时候。请不要错过性价比高的好房。
-
小区配套问经纪人
周边配套齐全,靠近商业购物广场,有菜市、靠近地铁 医院、公园、银行、超市,可满足日常生活所需。
-
服务介绍问经纪人
本人做房产多年,本着专业的房产知识,为您服务,我会在短的时间内帮您买好满意的房子,不让您错失任何好房子,更不让您每天为买房的事烦心,欢迎随时联系!
-
户型解读问经纪人
房子户型好,布局合理 南北通透采光好 ,开发商以花园式设计为核心的居住打造的花园小区
周边配套
交通综合评分
查看全部超过南宁64.7%的小区
-
地铁公交
5.0
-
驾车出行
9.0
本月均价 5305元/m²
环比上月 下跌 1.25%
同比去年 下跌 15%
猜你喜欢
同小区其它房源
户型齐全,主打南北通透,全明格局四居
建工城户型主要有94平-134平的南北通透,全明格局的四居 、132平-161平的南北通透,户型方正的五居 、88平-88平的南北通透,户型方正的三居 。
*获取完整户型报告,同时会有免费语音讲解服务
-
7075元/㎡
本月挂牌均价
-
0.41%
环比上月
买房加房产交流群,省钱不踩雷
3000+人正在热聊
- 免费咨询
- 专业服务
- 区域解读
- 户型分析

