滨湖家园 150平4居 南向精装修 安静不临街
-
400万
总价
-
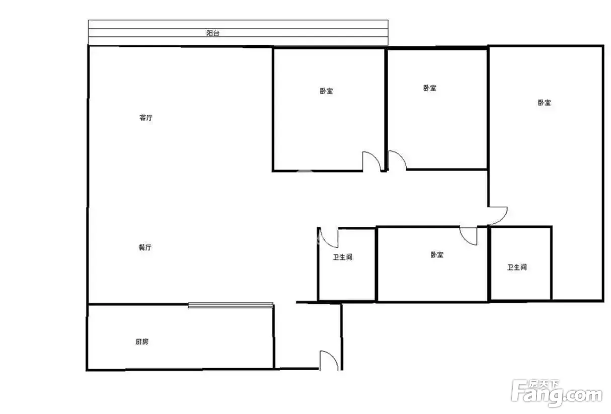
4室2厅2卫
户型
-
150㎡
建筑面积
买房加房产交流群,省钱不踩雷
3000+人正在热聊
-
单价
26667元/平米
- 挂牌价格解析
-
楼层
高层/27层
- 咨询楼层
-
套内
149㎡
- 咨询套内使用面积
-
楼型
板楼
-
朝向
南
-
装修
精装修
-
年代
2010
-
发布
2025-11-14
-
地铁
距3号线滨湖路站约566米
-
深度测评
小区滨湖家园(青秀-金湖片区)
-
更多
楼户比、楼层高度、交易历史、抵押信息
房源描述(1)
-
核心卖点问经纪人
1.房子户型方正,格局安排合理。 2.房子精装修,拎包可入住。 3.老城区商圈,出门即可享吃喝玩乐一体化生活。 4.交通出行方便,有各个公交线。 5.出租容易。拥有地铁口,可用来居然或办公都方便。
-
业主心态问经纪人
业主很信任我,我能了解业主卖房新的动态。目前市场交易量平稳,政策已经基本稳定,是市场触底入手的好时候。请不要错过性价比高的好房。
-
小区配套问经纪人
小区设施 小区中心花园干净整洁,有老人活动的地方,有游泳池,人车分流,配套完整
-
服务介绍问经纪人
本人做房产多年,本着专业的房产知识,为您服务,我会在短的时间内帮您买好满意的房子,不让您错失任何好房子,更不让您每天为买房的事烦心,欢迎随时联系!
-
税费分析房贷计算
房子已经得证五年了,不是一套,有一个点的个人所得税。
周边配套
交通综合评分
查看全部超过南宁94.9%的小区
-
地铁公交
10.0
本月均价 26415元/m²
环比上月 下跌 0.42%
同比去年 下跌 9.61%
猜你喜欢
同小区其它房源
户型齐全,主打户型方正,明卫,双阳台,双卧朝南,主卧朝南四居
滨湖家园户型主要有151平-153平的户型方正,明卫,双阳台,双卧朝南,主卧朝南的四居 。
*获取完整户型报告,同时会有免费语音讲解服务
-
12126元/㎡
本月挂牌均价
-
0.24%
环比上月
买房加房产交流群,省钱不踩雷
3000+人正在热聊
- 免费咨询
- 专业服务
- 区域解读
- 户型分析


