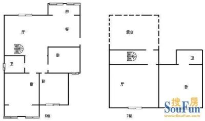
6+7复式 带露台 东头东户 客厅两面窗 通透 采光好
-
199万
总价
-
4室2厅
户型
-
168.58㎡
建筑面积
买房加房产交流群,省钱不踩雷
3000+人正在热聊
加入群聊
-
单价
11805元/平米
- 挂牌价格解析
-
楼层
高楼层/6层
- 咨询楼层
-
套内
149.56㎡
- 咨询套内使用面积
-
楼型
板楼
-
朝向
南
-
装修
简装
-
供暖
集中供暖
-
发布
2023-01-28
-
地铁
距2号线生产路站约1074米
-
咨询总首付
首付约87万
首付税费及佣金情况 -
深度测评
小区巴黎花园(天桥-北坦)
-
更多
楼户比、楼层高度、交易历史、抵押信息
周边配套
地址:明湖西路303号
交通综合评分
查看全部4.9
“一般”
超过济南99.1%的小区
-
地铁公交
9.0
-
城际交通
4.5
本月均价 15381元/m²
环比上月 下跌 3.91%
同比去年 下跌 9.69%
猜你喜欢
同小区其它房源
户型齐全,主打户型方正,明厨,明卫,双阳台,双卧朝南三居
巴黎花园户型主要有100平-143平的户型方正,明厨,明卫,双阳台,双卧朝南的三居 、56平-167平的户型方正,明厨的一居 、98平-128平的户型方正,明厨,客厅朝南,主卧朝南的二居 。
*获取完整户型报告,同时会有免费语音讲解服务
-
10977元/㎡
本月挂牌均价
-
1.06%
环比上月
买房加房产交流群,省钱不踩雷
3000+人正在热聊
加入群聊
免责声明:房源信息由网站用户提供,其真实性、合法性由信息提供者负责,最终以政府部门登记备案为准。本网站不声明或保证内容之正确性和可靠性,购买该房屋时,请谨慎核查。入学情况仅凭历史经验总结,在此不承诺升学事宜。请您在签订合同之前,切勿支付任何形式的费用,以免上当受骗。



