南北通透小户型,济微路温馨一居,中建八局
-
32万元
总价
-
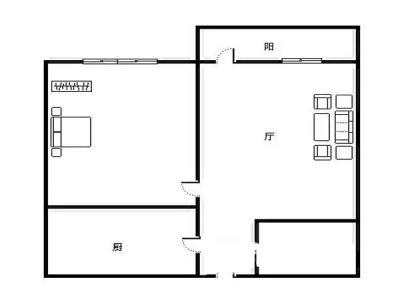
1室1厅1卫
户型
-
38.5㎡
建筑面积
买房加房产交流群,省钱不踩雷
3000+人正在热聊
加入群聊
-
单价
8312元/平米
- 挂牌价格解析
-
楼层
中层/5层
- 咨询楼层
-
套内
暂无数据
- 咨询套内使用面积
-
朝向
南北
-
装修
精装
-
年代
2001
-
发布
2025-04-29
-
咨询总首付
首付约13.9万
首付税费及佣金情况 -
深度测评
小区济微路中建八局宿舍(市中-王官庄)
-
更多
楼户比、楼层高度、交易历史、抵押信息
业主自评
-
桃花乱落如红雨
加入房天下2377天
接电时间:09:00-22:00
中建八局宿舍,济微路91号,挨着济南大学,个人房产,寻找有缘人,
中建八局宿舍,济微路91号,挨着济南大学,个人房产,寻找有缘人,
周边配套
地址:济微路77号
交通综合评分
查看全部2.0
“一般”
超过济南68.5%的小区
-
地铁公交
5.0
本月均价 18403元/m²
环比上月 上涨 3%
同比去年 上涨 10.13%
买房加房产交流群,省钱不踩雷
3000+人正在热聊
加入群聊
联系业主
免责声明:房源信息由网站用户提供,其真实性、合法性由信息提供者负责,最终以政府部门登记备案为准。本网站不声明或保证内容之正确性和可靠性,购买该房屋时,请谨慎核查。入学情况仅凭历史经验总结,在此不承诺升学事宜。请您在签订合同之前,切勿支付任何形式的费用,以免上当受骗。

