湖畔下叠别墅 三车位 有钥匙可贷款 南北院150 不临街
-
610万
总价
-
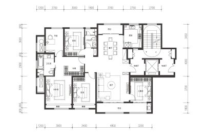
5室2厅
户型
-
253.38㎡
建筑面积
-
单价
24075元/平米
- 挂牌价格解析
-
楼层
4层
- 咨询楼层
-
套内
暂无数据
- 咨询套内使用面积
-
楼型
板塔结合
-
朝向
南北
-
装修
毛坯
-
供暖
集中供暖
-
发布
2025-09-03
-
深度测评
小区城投绿城·湖畔雲庐(太白湖新区-吾悦广场)
-
更多
楼户比、楼层高度、交易历史、抵押信息
周边配套
地址:车站南路与石佛路交叉口
交通综合评分
查看全部4.0
“一般”
超过济宁0.0%的小区
-
地铁公交
10.0
猜你喜欢
同小区其它房源
户型齐全,主打南北通透,全明格局三居
城投绿城·湖畔雲庐户型主要有120平-135平的南北通透,全明格局的三居 、144平-167平的南北通透,全明格局的四居 、189平-190平的南北通透,采光充足的五居 。
*获取完整户型报告,同时会有免费语音讲解服务
免责声明:房源信息由网站用户提供,其真实性、合法性由信息提供者负责,最终以政府部门登记备案为准。本网站不声明或保证内容之正确性和可靠性,购买该房屋时,请谨慎核查。入学情况仅凭历史经验总结,在此不承诺升学事宜。请您在签订合同之前,切勿支付任何形式的费用,以免上当受骗。



