鸿禧华庭 4 房 109.6 方
-
280万
总价
-
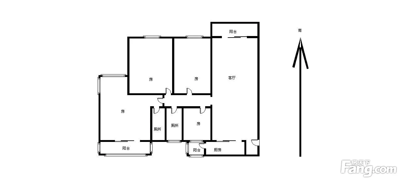
4室2厅2卫
户型
-
109.6㎡
建筑面积
买房加房产交流群,省钱不踩雷
3000+人正在热聊
-
单价
25547元/平米
- 挂牌价格解析
-
楼层
高层/11层
- 咨询楼层
-
套内
暂无数据
- 咨询套内使用面积
-
楼型
塔楼
-
朝向
南
-
装修
简装修
-
年代
2003
-
发布
2026-04-16
-
地铁
距3号线市桥站约431米
-
咨询总首付
首付约60.2万
首付税费及佣金情况 -
深度测评
小区鸿禧华庭(番禺-市桥北)
-
更多
楼户比、楼层高度、交易历史、抵押信息
房源描述(1)
-
核心卖点问经纪人
相信为您的这套房子您一定会满意,赶快行动吧,先到先得! 房屋年代∶2003,面积∶109.6平方米,朝向∶南 1. 小区配备高端物业管理,让你享受宾至如归的服务; 2. 小区人文素质高,是您的居家的绝佳选择; 3. 小区居住安静舒适,让您拥有高品质的生活环境; 4. 小区绿化率高,绿树成荫鸟语花香让您随时呼吸到新鲜空气。
周边配套
交通综合评分
查看全部超过广州15.7%的小区
-
地铁公交
8.0
-
驾车出行
10.0
本月均价 31017元/m²
环比上月 上涨 0.17%
同比去年 下跌 7.17%
猜你喜欢
同小区其它房源
户型齐全,主打明卫,双阳台,双卧朝南三居
雅居乐鸿禧华庭户型主要有95平-178平的明卫,双阳台,双卧朝南的三居 、83平-97平的明卫,主卧朝南的二居 、127平-218平的明卫的四居 。
*获取完整户型报告,同时会有免费语音讲解服务
-
15686元/㎡
本月挂牌均价
-
0.24%
环比上月
买房加房产交流群,省钱不踩雷
3000+人正在热聊
- 免费咨询
- 专业服务
- 区域解读
- 户型分析

