锦绣御景苑 5室2厅4卫
-
165万
总价
-
5室2厅4卫
户型
-
206.39㎡
建筑面积
买房加房产交流群,省钱不踩雷
3000+人正在热聊
-
单价
7995元/平米
- 挂牌价格解析
-
楼层
低层/18层
- 咨询楼层
-
套内
205.39㎡
- 咨询套内使用面积
-
楼型
板楼
-
朝向
南北
-
装修
简装修
-
年代
2008
-
发布
2025-03-15
-
咨询总首付
首付约43.2万
首付税费及佣金情况 -
深度测评
小区锦绣御景苑(增城-荔城大道北)
-
更多
楼户比、楼层高度、交易历史、抵押信息
房源描述(1)
-
核心卖点问经纪人
装修情况:精装修 房源特色介绍: 1、 房东诚心出售,看房方便 2、 朝向:南北,居住舒服 3、 小区周边交通便利,生活配套设施齐全,生活 便利
-
业主心态问经纪人
业主很信任我,我能了解业主卖房新的动态。目前市场交易量平稳,政策已经基本稳定,是市场触底入手的好时候。请不要错过性价比高的好房。
-
小区配套问经纪人
小区地理位置佳,绿化环境优越整洁,居民素质高,物业管理完善,适宜居住
-
服务介绍问经纪人
本人从事房产多年,我会根据您的需求为您量身找房! 实力三大服务: 1、 快速定位服务(指定买哪里,我来帮您找) 2、 快速量身找房(需求您来说,剩下交给我) 3、 快速房源估价(心里有房源,我给您建议
-
税费分析房贷计算
关于本房的税费信息情况,请电话联系我,我将详细的为您讲解!
-
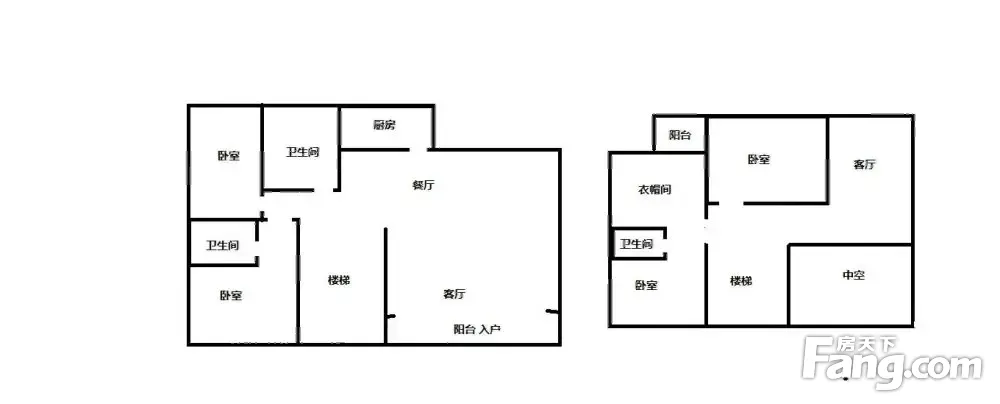
户型解读问经纪人
房屋拥有相对宽松的尺寸,布局通透,动静分离,设计豪华
周边配套
交通综合评分
查看全部超过广州54.1%的小区
-
地铁公交
5.0
-
驾车出行
9.0
本月均价 9167元/m²
环比上月 下跌 0.32%
同比去年 下跌 8.56%
猜你喜欢
同小区其它房源
户型齐全,主打明卫,双阳台三居
锦绣御景苑户型主要有93平-333平的明卫,双阳台的三居 、139平-246平的户型方正,明卫,客厅朝南,双阳台的四居 、76平-82平的户型方正,双阳台的二居 。
*获取完整户型报告,同时会有免费语音讲解服务
-
8422元/㎡
本月挂牌均价
-
1.3%
环比上月
买房加房产交流群,省钱不踩雷
3000+人正在热聊
- 免费咨询
- 专业服务
- 区域解读
- 户型分析


