全明户型,可看江,高层电梯 精装修 4房
-
412万
总价
-
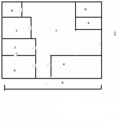
4室2厅
户型
-
157.77㎡
建筑面积
买房加房产交流群,省钱不踩雷
3000+人正在热聊
加入群聊
-
单价
26114元/平米
- 挂牌价格解析
-
楼层
高楼层/25层
- 咨询楼层
-
套内
暂无数据
- 咨询套内使用面积
-
楼型
板塔结合
-
朝向
东南北
-
装修
精装
-
供暖
暂无数据
-
发布
2025-11-30
-
地铁
距1号线上藤站约1037米
-
咨询总首付
首付约142.9万
首付税费及佣金情况 -
深度测评
小区元洪锦江二期(台江-江滨中路)
-
更多
楼户比、楼层高度、交易历史、抵押信息
周边配套
地址:台江路109号
交通综合评分
查看全部6.6
“较好”
超过福州7.0%的小区
-
地铁公交
9.0
-
驾车出行
10.0
本月均价 26045元/m²
环比上月 下跌 0.46%
同比去年 下跌 12.36%
猜你喜欢
同小区其它房源
户型齐全,主打户型方正,明卫,双阳台,主卧朝南三居
元洪锦江二期户型主要有142平-166平的户型方正,明卫,双阳台,主卧朝南的三居 、157平-167平的明厨,明卫的四居 、268平-268平的户型方正,明卫,明厨,客厅朝南,全明格局,双卧朝南,主卧朝南的其他居 。
*获取完整户型报告,同时会有免费语音讲解服务
-
20264元/㎡
本月挂牌均价
-
0.33%
环比上月
买房加房产交流群,省钱不踩雷
3000+人正在热聊
加入群聊
免责声明:房源信息由网站用户提供,其真实性、合法性由信息提供者负责,最终以政府部门登记备案为准。本网站不声明或保证内容之正确性和可靠性,购买该房屋时,请谨慎核查。入学情况仅凭历史经验总结,在此不承诺升学事宜。请您在签订合同之前,切勿支付任何形式的费用,以免上当受骗。



