中南风景 2室1厅 南 北
-
82.3万
总价
-
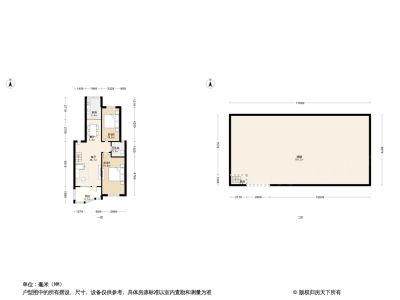
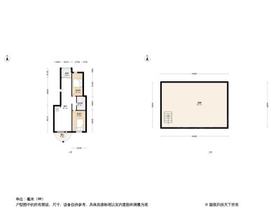
2室1厅
户型
-
78.42㎡
建筑面积
买房加房产交流群,省钱不踩雷
3000+人正在热聊
加入群聊
-
单价
10495元/平米
- 挂牌价格解析
-
楼层
高楼层/7层
- 咨询楼层
-
套内
68.9㎡
- 咨询套内使用面积
-
楼型
板楼
-
朝向
南北
-
装修
其他
-
供暖
集中供暖
-
发布
2025-07-22
-
咨询总首付
首付约24.8万
首付税费及佣金情况 -
深度测评
小区中南风景(中山-中南路)
-
更多
楼户比、楼层高度、交易历史、抵押信息
周边配套
地址:中山区中景园2-14号
交通综合评分
查看全部2.0
“一般”
超过大连2.9%的小区
-
地铁公交
5.0
本月均价 14265元/m²
环比上月 下跌 12.2%
同比去年 下跌 16.38%
猜你喜欢
同小区其它房源
户型齐全,主打明厨,客厅朝南,主卧朝南二居
中南风景户型主要有82平-112平的明厨,客厅朝南,主卧朝南的二居 、109平-147平的户型方正,明厨,双阳台的三居 、40平-92平的户型方正,明厨,主卧朝南的一居 。
*获取完整户型报告,同时会有免费语音讲解服务
-
14104元/㎡
本月挂牌均价
-
0.92%
环比上月
买房加房产交流群,省钱不踩雷
3000+人正在热聊
加入群聊
免责声明:房源信息由网站用户提供,其真实性、合法性由信息提供者负责,最终以政府部门登记备案为准。本网站不声明或保证内容之正确性和可靠性,购买该房屋时,请谨慎核查。入学情况仅凭历史经验总结,在此不承诺升学事宜。请您在签订合同之前,切勿支付任何形式的费用,以免上当受骗。



