无坡精装田字格西南向采光好环境好拎包即住近地铁24
-
40万
总价
-
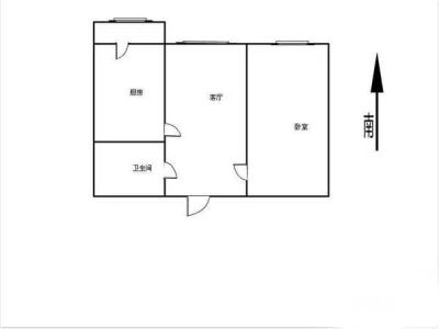
1室1厅
户型
-
36.75㎡
建筑面积
买房加房产交流群,省钱不踩雷
3000+人正在热聊
加入群聊
-
单价
10885元/平米
- 挂牌价格解析
-
楼层
低楼层/7层
- 咨询楼层
-
套内
暂无数据
- 咨询套内使用面积
-
楼型
板楼
-
朝向
西南
-
装修
精装
-
供暖
集中供暖
-
发布
2024-10-07
-
地铁
距5号线劳动公园站约400米
-
咨询总首付
首付约12.7万
首付税费及佣金情况 -
深度测评
小区麒麟西巷(中山-昆明街)
-
更多
楼户比、楼层高度、交易历史、抵押信息
周边配套
地址:麒麟西巷15号
交通综合评分
查看全部4.0
“一般”
超过大连45.2%的小区
-
地铁公交
10.0
本月均价 10469元/m²
环比上月 下跌 0.49%
同比去年 下跌 11.08%
猜你喜欢
同小区其它房源
户型齐全,主打户型方正,明厨,主卧朝南二居
麒麟西巷户型主要有39平-91平的户型方正,明厨,主卧朝南的二居 、33平-51平的户型方正,明厨,主卧朝南的一居 、67平-122平的户型方正,明厨,主卧朝南的三居 。
*获取完整户型报告,同时会有免费语音讲解服务
-
23360元/㎡
本月挂牌均价
-
0.18%
环比上月
买房加房产交流群,省钱不踩雷
3000+人正在热聊
加入群聊
免责声明:房源信息由网站用户提供,其真实性、合法性由信息提供者负责,最终以政府部门登记备案为准。本网站不声明或保证内容之正确性和可靠性,购买该房屋时,请谨慎核查。入学情况仅凭历史经验总结,在此不承诺升学事宜。请您在签订合同之前,切勿支付任何形式的费用,以免上当受骗。



