金州 金州朝阳小区 1室1厅 45.88㎡ 29万
-
27万元
总价
-
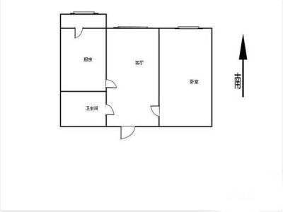
1室1厅1卫
户型
-
45.88㎡
建筑面积
买房加房产交流群,省钱不踩雷
3000+人正在热聊
加入群聊
-
单价
5885元/平米
- 挂牌价格解析
-
楼层
高层/7层
- 咨询楼层
-
套内
暂无数据
- 咨询套内使用面积
-
朝向
南
-
年代
2000
-
发布
2025-08-13
-
地铁
距3号线支线东山路站约1077米
-
咨询总首付
首付约9.6万
首付税费及佣金情况 -
深度测评
小区金州朝阳小区(金州-体育场)
-
更多
楼户比、楼层高度、交易历史、抵押信息
业主自评
-
镜中花288
加入房天下299天
接电时间:09:00-22:00
周边配套
地址:金州区解放路80号
交通综合评分
查看全部7.8
“较好”
超过大连62.0%的小区
-
地铁公交
9.0
-
驾车出行
10.0
-
城际交通
4.0
本月均价 5937元/m²
环比上月 下跌 0.11%
同比去年 下跌 26.4%
猜你喜欢
同小区其它房源
-
7547元/㎡
本月挂牌均价
-
0.33%
环比上月
买房加房产交流群,省钱不踩雷
3000+人正在热聊
加入群聊
联系业主
免责声明:房源信息由网站用户提供,其真实性、合法性由信息提供者负责,最终以政府部门登记备案为准。本网站不声明或保证内容之正确性和可靠性,购买该房屋时,请谨慎核查。入学情况仅凭历史经验总结,在此不承诺升学事宜。请您在签订合同之前,切勿支付任何形式的费用,以免上当受骗。

