装修保持好的很,业主急售,价格也有谈
-
130万
总价
-
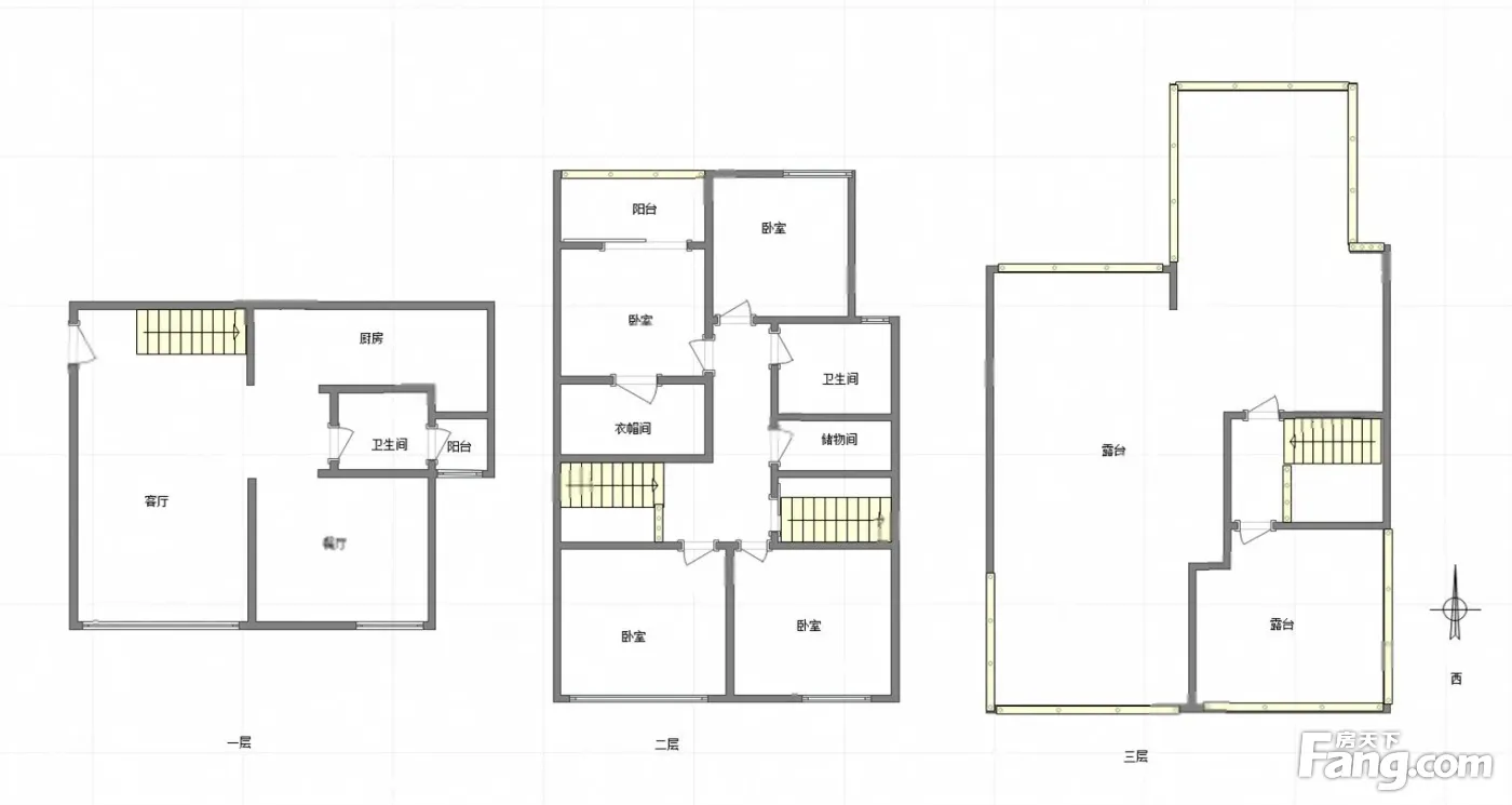
4室2厅2卫
户型
-
120.1㎡
建筑面积
买房加房产交流群,省钱不踩雷
3000+人正在热聊
-
单价
10824元/平米
- 挂牌价格解析
-
楼层
中层/11层
- 咨询楼层
-
套内
暂无数据
- 咨询套内使用面积
-
楼型
板楼
-
朝向
西南
-
装修
豪华装修
-
年代
2016
-
发布
2025-12-24
-
地铁
距3号线花溪站约304米
-
咨询总首付
首付约33.3万
首付税费及佣金情况 -
深度测评
小区东原桐麓(巴南-渝南大道)
-
更多
楼户比、楼层高度、交易历史、抵押信息
房源描述(1)
-
核心卖点问经纪人
1、交通很方便 2、朝向:西南 3、看房时间:24为您服务,期待您的提前联系 买房注意事项: 1、产权性质 2、所有权是否清晰 3、交易是否透明 4、资金一定要有保障 5、交易后的时间是否明确 6、 是否迁出 7、是否有租赁关系
-
业主心态问经纪人
业主很信任我,我能了解业主卖房新的动态。目前政策已经基本稳定,是入手的好时候。请不要错过性价比高的好房。
-
小区配套问经纪人
位置:小区地理位置佳,绿化率高,居民素质高 配套:有健身器材,小型篮球场,可供小区居民使用 车位:停车位充足,建有地上停车场和地下车库 保安:小区内24保安巡逻
-
服务介绍问经纪人
本人从事房地产多年,公司有大量好房源,欢迎进入我的店铺查看,欢迎随时电话咨询,相信我的专业,为您置业安家保驾护航。
周边配套
交通综合评分
查看全部超过重庆85.7%的小区
-
地铁公交
9.0
-
驾车出行
10.0
本月均价 10015元/m²
环比上月 上涨 0.44%
同比去年 下跌 6.84%
猜你喜欢
同小区其它房源
户型齐全,主打户型方正,双阳台三居
东原桐麓户型主要有52平-85平的户型方正,双阳台的三居 、48平-85平的户型方正,双阳台的二居 、71平-122平的户型方正,双阳台,主卧朝南的四居 。
*获取完整户型报告,同时会有免费语音讲解服务
-
8669元/㎡
本月挂牌均价
-
0.66%
环比上月
买房加房产交流群,省钱不踩雷
3000+人正在热聊
- 免费咨询
- 专业服务
- 区域解读
- 户型分析

