石桥铺轨道口 顶跃带私家露台 精装拎包入住 随时看 还价就卖
-
99.9万
总价
-
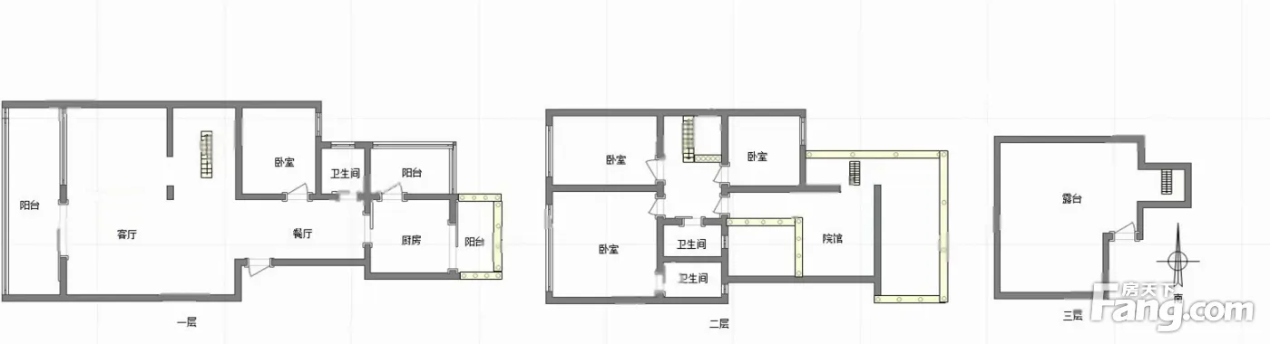
4室2厅2卫
户型
-
195.67㎡
建筑面积
买房加房产交流群,省钱不踩雷
3000+人正在热聊
-
单价
5106元/平米
- 挂牌价格解析
-
楼层
高层/7层
- 咨询楼层
-
套内
暂无数据
- 咨询套内使用面积
-
楼型
板楼
-
朝向
南北
-
装修
精装修
-
年代
2005
-
发布
2025-11-24
-
地铁
距1号线石桥铺站约307米
-
咨询总首付
首付约33.6万
首付税费及佣金情况 -
深度测评
小区三设计院家属楼(九龙坡-石桥铺)
-
更多
楼户比、楼层高度、交易历史、抵押信息
房源描述(1)
-
核心卖点问经纪人
【房屋简介】建于2008年,结构牢固。 【装修情况】精装修,维护得宜,拎包即可入住。 【周边环境】距离轻轨站仅200米,出行便捷。小区居住氛围宁静,生活配套设施齐全。 【价格信息】售价99.9万元,购入年限不满两年,是 。 【特色亮点】位于城市繁华与宁静的交汇处,真正实现闹中取静,居住舒适度高。
-
业主心态问经纪人
业主很信任我,我能了解业主卖房新的动态。目前政策已经基本稳定,是入手的好时候。请不要错过性价比高的好房。
-
小区配套问经纪人
位置:小区地理位置佳,绿化率高,居民素质高 配套:有健身器材,小型篮球场,可供小区居民使用 车位:停车位充足,建有地上停车场和地下车库 保安:小区内24保安巡逻
-
服务介绍问经纪人
本人从事房地产多年,公司有大量好房源,欢迎进入我的店铺查看,欢迎随时电话咨询,相信我的专业,为您置业安家保驾护航。
周边配套
交通综合评分
查看全部超过重庆38.2%的小区
-
地铁公交
10.0
-
驾车出行
10.0
本月均价 6198元/m²
环比上月 下跌 6.25%
同比去年 下跌 2.49%
猜你喜欢
同小区其它房源
户型齐全,主打户型方正,明厨,明卫,双卧朝南,主卧朝南三居
三设计院家属楼户型主要有80平-147平的户型方正,明厨,明卫,双卧朝南,主卧朝南的三居 、210平-210平的户型方正,明卫,明厨,客厅朝南,全明格局,主卧朝南的四居 。
*获取完整户型报告,同时会有免费语音讲解服务
-
8634元/㎡
本月挂牌均价
-
0.68%
环比上月
买房加房产交流群,省钱不踩雷
3000+人正在热聊
- 免费咨询
- 专业服务
- 区域解读
- 户型分析

