(现房直降28万)重庆观音桥,首付低13万,精装修带空调地暖
-
84万
总价
-
1室2厅1卫
户型
-
50㎡
建筑面积
买房加房产交流群,省钱不踩雷
3000+人正在热聊
-
单价
16800元/平米
- 挂牌价格解析
-
楼层
高层/17层
- 咨询楼层
-
套内
45㎡
- 咨询套内使用面积
-
楼型
钢混
-
朝向
南
-
装修
精装修
-
年代
2022
-
发布
2025-01-05
-
地铁
距3号线红旗河沟站约206米
-
咨询总首付
首付约20.8万
首付税费及佣金情况 -
深度测评
小区中海寰宇时代(渝北-加州新牌坊)
-
更多
楼户比、楼层高度、交易历史、抵押信息
房源描述(1)
-
核心卖点问经纪人
观音桥下一站,性价比小启元 1、交通配套:东西贯穿西部高新区、弹子石CBD、江北嘴CBD板块;近邻轨道4、6号线花卉园站,依托北区城市经济产业动脉线及城市人文风景名片,无缝链接主城全区。 2、商业配套:占据都会核心区域,位居观音桥商圈、嘉州商圈、冉家坝商圈、大石坝商圈四大主流商圈几何中心,尽揽一城繁华。 3、周边xue校:项目紧邻松树桥中xue、龙溪小xue,入学更便捷。 4、周边医院:项目渝北区第二人民医院、加州医院、红旗河沟医院环伺 5、周边公园:项目邻近花卉园公园、鸿恩寺公园,尽享森氧日常
-
业主心态问经纪人
1、本房源为一手新房,公司代理销售,不收取任何费用,并能享受购房专场优惠。 2、全程接送客户,陪同客户看房选房,买房是大事,实地考察看看很重要。
-
小区配套问经纪人
精装小户|低总价|书包房 大观音桥核心红盘来袭,稀缺精装品质现房 88万上车江北核心的最后机会,❶ 央企❷双轻轨❸ 精装❹现房 ✅中央空调✅新风✅地暖;即买即享,直接拎包入住
-
服务介绍问经纪人
从事房地产8年有余,熟悉主城区300多个新盘,在房地产领域我擅长区域分析、政策了解、区位价格以及未来规划等,根据您的需求精准配盘,让您看房省时省心。欢迎咨询:181 8319 1810(微Xin同号)
-
税费分析房贷计算
1、契税:家庭为单位:首套房:1%;二套房:1%;三套及以上3%。 2、大修基金:建面*80㎡;
-
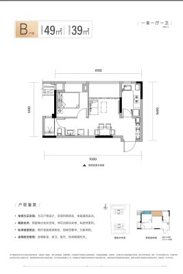
户型解读问经纪人
面积: 建面47-71㎡ 总层高: 17-18F 绿化率:30%;总户数:338户;交付标准:精装修 新风+中央空调+地暖
周边配套
交通综合评分
查看全部超过重庆0.0%的小区
-
地铁公交
10.0
-
驾车出行
10.0
-
城际交通
4.0
本月均价 26393元/m²
环比上月 上涨 0.7%
同比去年 上涨 8.22%
猜你喜欢
同小区其它房源
买房加房产交流群,省钱不踩雷
3000+人正在热聊
- 免费咨询
- 专业服务
- 区域解读
- 户型分析


