(大横厅4房2卫)九龙坡万象城豪宅,首付低35万,谢小+杨中
-
230万
总价
-
4室2厅2卫
户型
-
139㎡
建筑面积
买房加房产交流群,省钱不踩雷
3000+人正在热聊
-
单价
16547元/平米
- 挂牌价格解析
-
楼层
中层/31层
- 咨询楼层
-
套内
130㎡
- 咨询套内使用面积
-
楼型
板楼
-
朝向
南北
-
装修
毛坯
-
年代
2022
-
发布
2025-10-01
-
地铁
距2号线杨家坪站约657米
-
咨询总首付
首付约59.1万
首付税费及佣金情况 -
深度测评
小区新希望·D10天际(九龙坡-杨家坪)
-
更多
楼户比、楼层高度、交易历史、抵押信息
房源描述(1)
-
核心卖点问经纪人
板块价值: 1、目前九龙半岛的城市规划与建设可以说是将按照重庆未来的副中心的标准来打造。 2、九龙坡政府提出的“广大新天地”南进、北拓的政策,主要争对的就是九龙半岛城市界面焕新以及公共配套的完善。而整个计划正好形成一条直线串联整个九龙半岛,我们项目就处在这条线核心的位置。 3、杨家坪作为九龙坡区的核心腹地,而项目就处于离杨家坪商圈很近的核芯地。 4、商圈:杨家坪商圈、万象城商圈。
-
业主心态问经纪人
1、本房源为一手新房,公司代理销售,不收取任何费用,并能享受购房专场优惠。 2、全程接送客户,陪同客户看房选房,买房是大事,实地考察看看很重要。
-
小区配套问经纪人
全维配套: 1、双轻轨:2号线、18号线杨家坪站700米 2、医院:重庆医科大学医院,大坪医院 3、商业:距离700米杨家坪步行街、龙湖西城天街,1.5公里华润万象城、以及万象汇 4、三纵:正街、九滨路以及即将完工的南北大道 5、公园:西郊公园、康体公园、玉龙公园、龙闲公园、重庆动物园、彩云湖湿地公园
-
服务介绍问经纪人
从事房地产8年有余,熟悉主城区300多个新盘,在房地产领域我擅长区域分析、政策了解、区位价格以及未来规划等,根据您的需求精准配盘,让您看房省时省心。欢迎咨询:181 8319 1810(微Xin同号)
-
税费分析房贷计算
1、契税:家庭为单位:首套房:1%;二套房:1%;三套及以上3%。 2、大修基金:建面*80㎡;
-
户型解读问经纪人
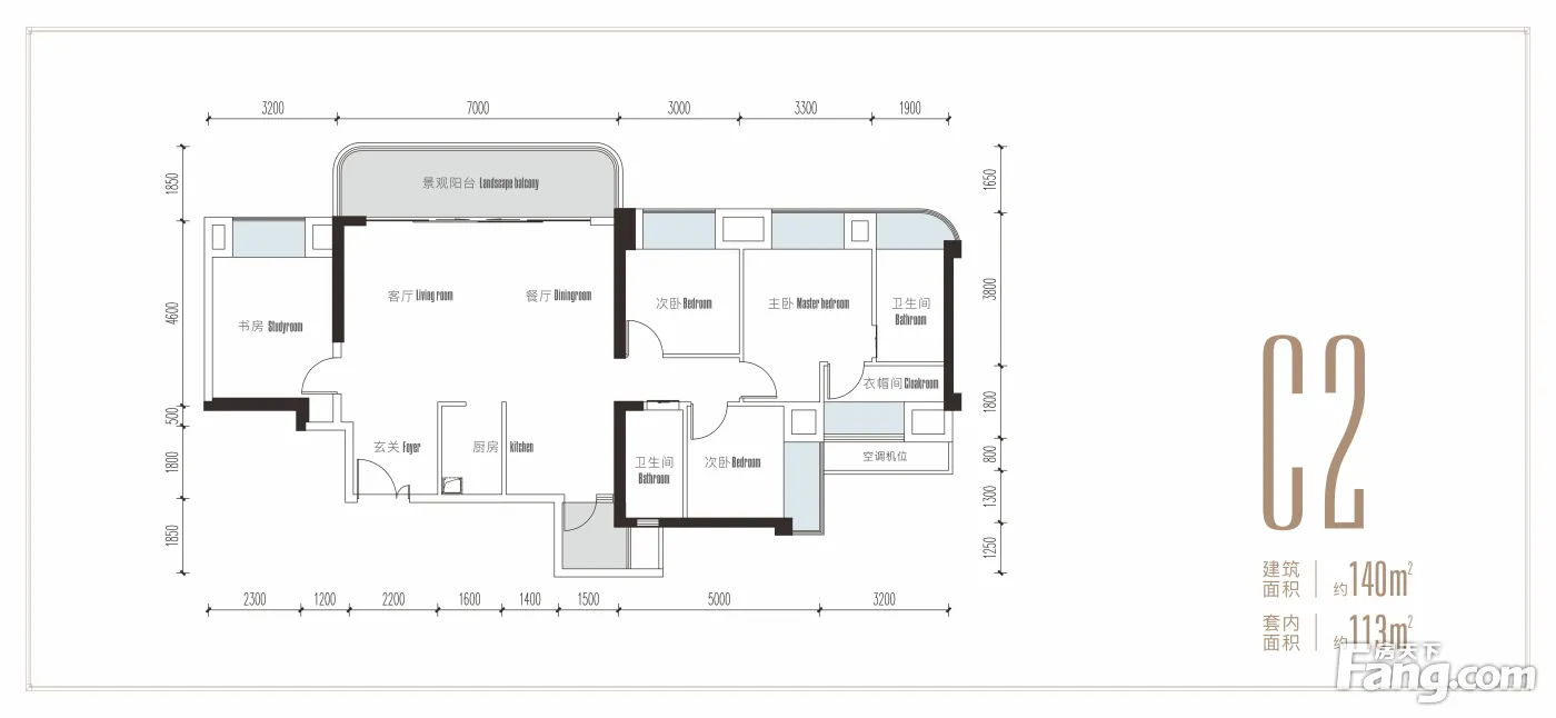
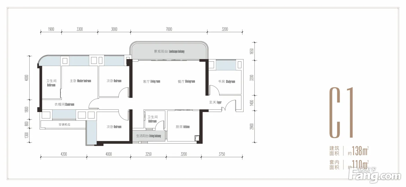
二地块【现房】 建面:140-172平,3T4户、总高32F 三地块【星湖岛】 建面:85-99平,2T6户、总高32F 建面:118-138平,2T4户、总高32F 建面:140-172平,3T4户、总高31F
周边配套
交通综合评分
查看全部超过重庆0.0%的小区
-
地铁公交
10.0
-
驾车出行
10.0
本月均价 18205元/m²
环比上月 下跌 0.67%
同比去年 下跌 8.01%
猜你喜欢
同小区其它房源
户型齐全,主打全明格局,户型方正四居
新希望·D10天际户型主要有138平-172平的全明格局,户型方正的四居 、118平-118平的全明格局,户型方正的三居 、252平-252平的南北通透,全明格局,户型方正的五居 。
*获取完整户型报告,同时会有免费语音讲解服务
-
8956元/㎡
本月挂牌均价
-
0.39%
环比上月
买房加房产交流群,省钱不踩雷
3000+人正在热聊
- 免费咨询
- 专业服务
- 区域解读
- 户型分析


