悦来方向,双拼别墅,单层面积大,急售362万
-
355万
总价
-
5室2厅3卫
户型
-
317.09㎡
建筑面积
买房加房产交流群,省钱不踩雷
3000+人正在热聊
加入群聊
-
单价
11196元/平米
- 挂牌价格解析
-
楼层
3层
- 咨询楼层
-
套内
暂无数据
- 咨询套内使用面积
-
楼型
独栋
-
朝向
南
-
装修
毛坯
-
发布
2025-07-06
-
地铁
距国博线清溪河约1087米
-
咨询总首付
首付约107.2万
首付税费及佣金情况 -
深度测评
小区金科岭上(北碚-北碚其他)
-
更多
楼户比、楼层高度、交易历史、抵押信息
房源描述(1)
-
核心卖点问经纪人
相信为您推荐的这套房子您一定会满意,赶快行动吧,先到先得! 房屋年代∶null,面积∶317.09平方米,朝向∶ 1. 小区配备高端物业管理,让你享受宾至如归的服务; 2. 小区人文素质高,是您的居家的绝佳选择; 3. 小区居住安静舒适,让您拥有高品质的生活环境; 4. 小区绿化率高,绿树成荫鸟语花香让您随时呼吸到新鲜空气。
-
业主心态问经纪人
业主不在这边了,现在空置,想处理变现,诚心出售
-
服务介绍问经纪人
本人从事房地产经纪服务超5年,取得从业证书,持证上岗。熟知房地产交易各项流程,提供交易的从实地带看房源到房产过户所有。
-
税费分析房贷计算
房子面积大于90平,首套契税1.5%,二套2%,三套及以上3%;个人所得税1%。
-
户型解读问经纪人
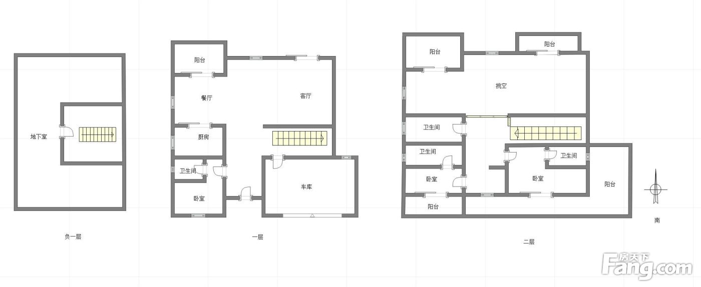
房子是双拼别墅,住家非常安静,地下室有采光,地上2.5层(坡屋顶),顶楼也有露台,端户花园,一楼车位入库。单层面积约140平左右。
周边配套
地址:两江新区国博中心北悦复大道旁
交通综合评分
查看全部6.6
“较好”
超过重庆64.0%的小区
-
地铁公交
9.0
-
驾车出行
10.0
猜你喜欢
同小区其它房源
户型齐全,主打明卫,双阳台,主卧朝南四居
金科岭上别墅户型主要有107平-181平的明卫,双阳台,主卧朝南的四居 、104平-134平的主卧带卫,带露台的三居 、302平-323平的南北通透,全明格局,户型方正的五居 。
*获取完整户型报告,同时会有免费语音讲解服务
-
6636元/㎡
本月挂牌均价
-
3.65%
环比上月
买房加房产交流群,省钱不踩雷
3000+人正在热聊
加入群聊
- 免费咨询
- 专业服务
- 区域解读
- 户型分析
免责声明:房源信息由网站用户提供,其真实性、合法性由信息提供者负责,最终以政府部门登记备案为准。本网站不声明或保证内容之正确性和可靠性,购买该房屋时,请谨慎核查。入学情况仅凭历史经验总结,在此不承诺升学事宜。请您在签订合同之前,切勿支付任何形式的费用,以免上当受骗。


