(工抵直降35万)悦来轻轨房,首付低13万,轻轨站300米
-
92万
总价
-
3室2厅2卫
户型
-
90㎡
建筑面积
买房加房产交流群,省钱不踩雷
3000+人正在热聊
-
单价
10222元/平米
- 挂牌价格解析
-
楼层
中层/15层
- 咨询楼层
-
套内
暂无数据
- 咨询套内使用面积
-
楼型
钢混
-
朝向
南
-
装修
毛坯
-
年代
2022
-
发布
2025-08-25
-
地铁
距国博线高义口约713米
-
咨询总首付
首付约24.1万
首付税费及佣金情况 -
深度测评
小区保利时区(两江新区-悦来)
-
更多
楼户比、楼层高度、交易历史、抵押信息
房源描述(1)
-
核心卖点问经纪人
卖点:300米地铁站,两站换乘10号线,三站双龙湖天街 配套价值 1、交通:高义口TOD为核芯,一桥四轨四立交 四轨:轨道交通6和10号线(已通车)、13和14号线(规划中) 2、商业:四大商圈,进阶理想生活 悦来商圈:500米内即达40万方高义口TOD商业体(在建中),2.5公里内悦来汇(在建中)。 中央公园商圈:5公里内规划有中央公园商圈已开业(包含公园天街、大悦城、吾悦广场)等600万方两江国际商务中心。 3、生态中心:10大城市公园,高端低密住区 周围环绕张家溪公园、白鹭公园、会展动步公园、中央公园、张家溪湿地公园等10座公园 4、艺术:文艺空间,重塑艺术原心 以悦来美术馆、川美国际设计为轴心,构建艺术精神空间
-
业主心态问经纪人
1、本房源为一手新房,公司代理销售,不收取任何费用,并能享受购房专场优惠。 2、全程接送客户,陪同客户看房选房,买房是大事,实地考察看看很重要。
-
小区配套问经纪人
1、世界名片:重庆向北4.0时代 城市未来中芯 重庆定位区域,北区热门区域 TOD创始人卡尔索普大师作品 山地海绵城市 智慧城市试点 Eco City试点城市 重庆集中供能板块 重庆建筑绿地1:1区域
-
服务介绍问经纪人
从事房地产8年有余,熟悉主城区300多个新盘,在房地产领域我擅长区域分析、政策了解、区位价格以及未来规划等,根据您的需求精准配盘,让您看房省时省心。欢迎咨询:181 8319 1810(微Xin同号)
-
税费分析房贷计算
1、契税:家庭为单位:首套房:1%;二套房:1%;三套及以上3%。 2、大修基金:建面*80㎡;
-
户型解读问经纪人
清水小高:建面90-95㎡,3房2厅2卫 臻装小高:建面130平,大横厅4房2厅2卫
周边配套
交通综合评分
查看全部超过重庆0.0%的小区
-
地铁公交
8.0
本月均价 12094元/m²
环比上月 上涨 1.36%
同比去年 下跌 14.98%
猜你喜欢
同小区其它房源
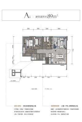
户型齐全,主打全明格局,户型方正三居
保利时区户型主要有89平-89平的全明格局,户型方正的三居 、105平-105平的户型方正,全明格局的四居 。
*获取完整户型报告,同时会有免费语音讲解服务
-
11376元/㎡
本月挂牌均价
-
0.28%
环比上月
买房加房产交流群,省钱不踩雷
3000+人正在热聊
- 免费咨询
- 专业服务
- 区域解读
- 户型分析


