九龙坡区含谷,西郊庄园纯独栋别墅,花园500平米 位置安静!
-
368万
总价
-
6室3厅5卫
户型
-
422㎡
建筑面积
买房加房产交流群,省钱不踩雷
3000+人正在热聊
加入群聊
-
单价
8720元/平米
- 挂牌价格解析
-
楼层
3层
- 咨询楼层
-
套内
暂无数据
- 咨询套内使用面积
-
楼型
独栋
-
朝向
东
-
装修
毛坯
-
年代
2008
-
发布
2025-05-18
-
地铁
暂无数据
-
咨询总首付
首付约122.6万
首付税费及佣金情况 -
深度测评
小区西郊庄园(九龙坡-白市驿)
-
更多
楼户比、楼层高度、交易历史、抵押信息
房源描述(1)
-
核心卖点问经纪人
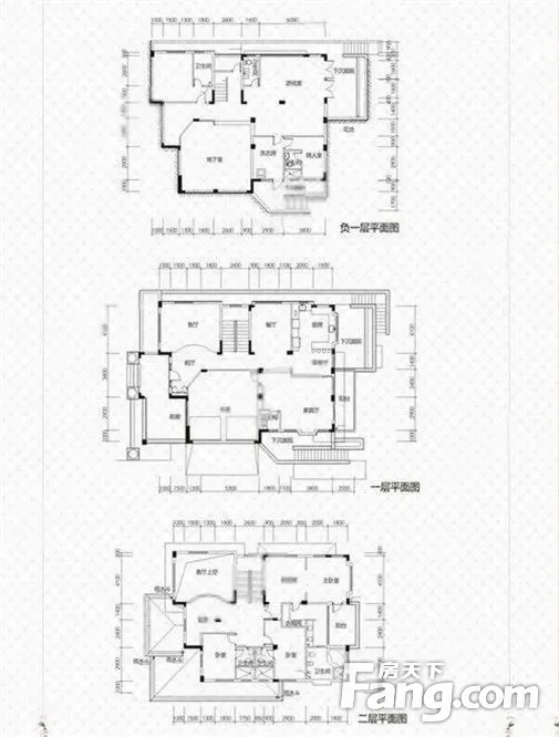
: 1.这套房子位于九龙坡区含谷西郊庄园,纯独栋别墅区。 2.房子位于二期靠中庭位置,让你就有清晰舒心的感觉! 3.上证面积422平米,上下共3层,真实现房,全明地下室,地下室一出去就是后花园! 4.赠送有500多平米私家花园,可自由打理花草。
-
业主心态问经纪人
业主自己,因工作问题才不得已出售此房,价格看起可再沟通!
-
小区配套问经纪人
位置:小区地理位置佳,绿化率高,居民素质高 配套:有健身器材,小型篮球场,可供小区居民使用 车位:停车位充足,建有地上停车场和地下车库 保安:小区内24保安巡逻
-
服务介绍问经纪人
尊敬的先生女士您好!欢迎你进入我的店铺,我是家来置业gao级经济人,从事房地产行业20年之久,做别墅销售也是十多年,主营重庆主城各区的花园洋房别墅,我的宗旨是诚信为客户服务,客户的满意是我的追求
-
税费分析房贷计算
新房: 房税费首套房契税1至3个点。 物业费2元到3元一平方。 购买新房主要税费: 契税:90平以内:1% ;90-124 平收1.5%;124平以上收2%(交房后地税收取) 注:以上收费仅供参考
周边配套
地址:九龙坡含谷镇含兴路(成渝高速含谷下道往前直走700米左转)
交通综合评分
查看全部5.0
“一般”
超过重庆21.9%的小区
-
地铁公交
5.0
-
驾车出行
10.0
猜你喜欢
同小区其它房源
-
7998元/㎡
本月挂牌均价
-
0.35%
环比上月
买房加房产交流群,省钱不踩雷
3000+人正在热聊
加入群聊
- 免费咨询
- 专业服务
- 区域解读
- 户型分析
免责声明:房源信息由网站用户提供,其真实性、合法性由信息提供者负责,最终以政府部门登记备案为准。本网站不声明或保证内容之正确性和可靠性,购买该房屋时,请谨慎核查。入学情况仅凭历史经验总结,在此不承诺升学事宜。请您在签订合同之前,切勿支付任何形式的费用,以免上当受骗。


