羊坊店路3号院新华社小区电梯房三居室 采光视野好
-
650万
总价
-
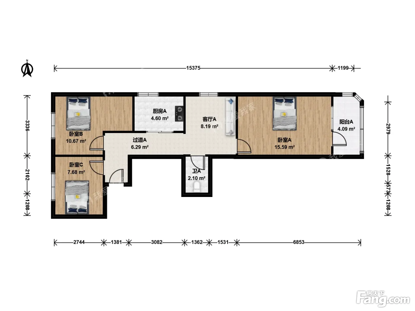
3室1厅1卫
户型
-
79.92㎡
建筑面积
买房加房产交流群,省钱不踩雷
3000+人正在热聊
-
单价
81332元/平米
- 挂牌价格解析
-
楼层
中楼层/12层
- 咨询楼层
-
套内
暂无数据
- 咨询套内使用面积
-
楼型
板塔结合
-
朝向
东西北
-
装修
简装
-
供暖
集中供暖
-
年代
1989
-
发布
2025-04-10
-
地铁
距1号线(八通线)军事博物馆站约465米
-
咨询总首付
首付约287万
首付税费及佣金情况 -
深度测评
小区新华社社区(海淀-军博)
-
更多
楼户比、楼层高度、交易历史、抵押信息
房源描述(2)
-
核心卖点问经纪人
核心卖点:大院文化的发源地之一,地标皇亭子位置紧邻长安街100米,出行双地铁环绕,南邻三级医院世纪坛医院,小区规整社区环境优美 ,社区有数种绿植,物业管理到位,停车位相对充足,院内有业主食堂,单位幼儿园
户型介绍:此房户型为3室1厅1卫,建筑面积为79.92平米,朝向东西通透挂北窗,双西向卧室正对花园,东侧带超大阳台
交通出行:此房出入交通便利,距离地铁9号线100米地铁1号线700米,和公交站40路100米。地铁7号线北京西站1500米,距离公交站450米可谓四通八达 -
小区配套问经纪人
附近有世纪坛以及玉渊潭和会城门公园等文旅打卡之地。三甲医院有两家,二级医院有两家。幼小初齐全。附近有7家银行。周边有购物中心、超市、农贸市场,购物方便
-
核心卖点问经纪人
核心卖点:大院文化的发源地之一,地标皇亭子位置紧邻长安街100米,出行双地铁环绕,南邻三级医院世纪坛医院,小区规整社区环境优美 ,社区有数种绿植,物业管理到位,停车位相对充足,院内有业主食堂,单位幼儿园
户型介绍:此房户型为3室1厅1卫,建筑面积为79.92平米,朝向东西通透挂北窗,双西向卧室正对花园,东侧带超大阳台
交通出行:此房出入交通便利,距离地铁9号线100米地铁1号线700米,和公交站40路100米。地铁7号线北京西站1500米,距离公交站450米可谓四通八达 -
小区配套问经纪人
附近有世纪坛以及玉渊潭和会城门公园等文旅打卡之地。三甲医院有两家,二级医院有两家。幼小初齐全。附近有7家银行。周边有购物中心、超市、农贸市场,购物方便
周边配套
交通综合评分
查看全部超过北京20.0%的小区
-
地铁公交
10.0
-
驾车出行
10.0
-
城际交通
4.0
本月均价 87588元/m²
环比上月 下跌 2.15%
同比去年 下跌 6.81%
猜你喜欢
同小区其它房源
户型齐全,主打明厨二居
新华社社区户型主要有44平-92平的明厨的二居 、38平-49平的户型方正,明厨,主卧朝南的一居 、70平-105平的户型方正,明卫,明厨,主卧朝南的三居 。
*获取完整户型报告,同时会有免费语音讲解服务
-
87733元/㎡
本月挂牌均价
-
0.4%
环比上月
买房加房产交流群,省钱不踩雷
3000+人正在热聊
- 免费咨询
- 专业服务
- 区域解读
- 户型分析


