通州格拉斯小镇531平精装别墅 满五5室5厅3厨
-
2500万
总价
-
5室5厅5卫
户型
-
531㎡
建筑面积
买房加房产交流群,省钱不踩雷
3000+人正在热聊
加入群聊
-
单价
47081元/平米
- 挂牌价格解析
-
楼层
3层
- 咨询楼层
-
套内
530㎡
- 咨询套内使用面积
-
楼型
独栋
-
朝向
北
-
装修
精装修
-
年代
2017
-
发布
2026-04-02
-
咨询总首付
首付约827.1万
首付税费及佣金情况 -
深度测评
小区格拉斯小镇(通州-宋庄)
-
更多
楼户比、楼层高度、交易历史、抵押信息
房源描述(1)
-
核心卖点问经纪人
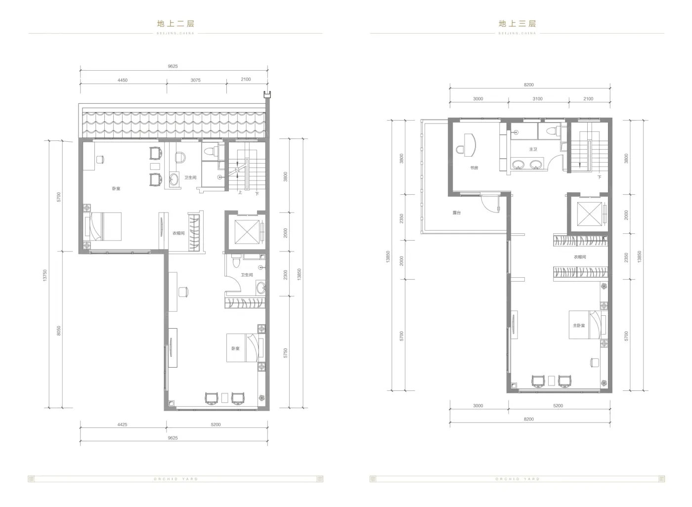
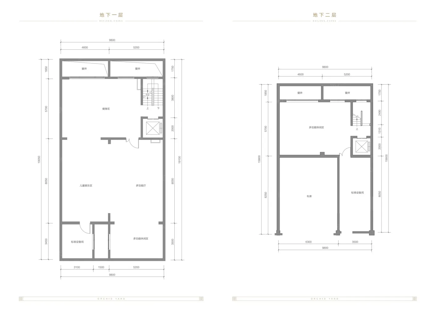
格拉斯小镇位于通州宋庄核心区域,这套2017年建成的531平米精装别墅,地上三层设计,拥有5室5厅5卫3厨1阳台的豪华格局。满五年的房本年限为购房者节省了税费支出,47081元/平米的单价在区域内具有较高性价比。 别墅采用精装修交付,531平米的超大空间可满足多代同堂的居住需求。5间卧室均配有独立卫浴,3个厨房设计兼顾中餐西餐需求,1个超大阳台让业主尽享私家庭院生活。宋庄区域环境优美,格拉斯小镇作为高端别墅社区,建筑品质和居住舒适度都有保障。
-
业主心态问经纪人
小杜24在线:158.0118.5804.
-
小区配套问经纪人
小区地理位置佳,绿化环境优越整洁,居民素质高,物业管理完善,适宜居住
-
服务介绍问经纪人
本人做房产多年,一直本着专业的房产知识,为您服务,我会在短的时间内帮您买好满意的房子,不让您错失任何好房子,更不让您每天为买房的事烦心,欢迎随时拨打我电话。
-
税费分析房贷计算
关于本房的税费信息情况,请电话联系我,我将详细的为您讲解!
周边配套
地址:北京市通州区宋庄镇格拉斯小镇营销中心
猜你喜欢
同小区其它房源
户型齐全,主打南北通透,客厅朝南,主卧带卫四居
格拉斯墅区户型主要有330平-597平的南北通透,客厅朝南,主卧带卫的四居 、247平-330平的南北通透,客厅朝南,主卧带卫的三居 、822平-822平的南北通透,客厅朝南的五居 。
*获取完整户型报告,同时会有免费语音讲解服务
-
42273元/㎡
本月挂牌均价
-
1.23%
环比上月
买房加房产交流群,省钱不踩雷
3000+人正在热聊
加入群聊
- 免费咨询
- 专业服务
- 区域解读
- 户型分析
免责声明:房源信息由网站用户提供,其真实性、合法性由信息提供者负责,最终以政府部门登记备案为准。本网站不声明或保证内容之正确性和可靠性,购买该房屋时,请谨慎核查。入学情况仅凭历史经验总结,在此不承诺升学事宜。请您在签订合同之前,切勿支付任何形式的费用,以免上当受骗。


