润景园2室1厅精装修
-
110万
总价
-
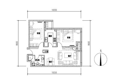
2室1厅1卫
户型
-
90.8㎡
建筑面积
买房加房产交流群,省钱不踩雷
3000+人正在热聊
-
单价
12115元/平米
- 挂牌价格解析
-
楼层
底层/11层
- 咨询楼层
-
套内
暂无数据
- 咨询套内使用面积
-
楼型
板楼
-
朝向
东西
-
装修
精装修
-
年代
2015
-
发布
2026-03-09
-
深度测评
小区润景园(顺义-顺义其它)
-
更多
楼户比、楼层高度、交易历史、抵押信息
房源描述(1)
-
核心卖点问经纪人
相信为您推荐的这套房子您一定会满意,赶快行动吧,先到先得! 房屋年代∶2015,面积∶90.8平方米,朝向∶东西 1. 小区配备高端物业管理,让你享受宾至如归的服务; 2. 小区人文素质高,是您的居家的绝佳选择; 3. 小区居住安静舒适,让您拥有高品质的生活环境; 4. 小区绿化率高,绿树成荫鸟语花香让您随时呼吸到新鲜空气。
周边配套
本月均价 14776元/m²
环比上月 上涨 1.06%
同比去年 下跌 13.05%
猜你喜欢
同小区其它房源
户型齐全,主打全明格局,干湿分离二居
润景园户型主要有83平-90平的全明格局,干湿分离的二居 、117平-120平的全明格局,干湿分离的三居 。
*获取完整户型报告,同时会有免费语音讲解服务
-
24228元/㎡
本月挂牌均价
-
1.9%
环比上月
买房加房产交流群,省钱不踩雷
3000+人正在热聊
- 免费咨询
- 专业服务
- 区域解读
- 户型分析

