顺义中央别墅区487平南向6居 豪华装修总价3000万
-
3000万
总价
-
6室4厅5卫
户型
-
487㎡
建筑面积
买房加房产交流群,省钱不踩雷
3000+人正在热聊
加入群聊
-
单价
61602元/平米
- 挂牌价格解析
-
楼层
3层
- 咨询楼层
-
套内
486㎡
- 咨询套内使用面积
-
楼型
独栋
-
朝向
南
-
装修
豪华装修
-
年代
2025
-
发布
2026-01-24
-
地铁
暂无数据
-
咨询总首付
首付约1018.2万
首付税费及佣金情况 -
深度测评
小区龙湾别墅(顺义-中央别墅区)
-
更多
楼户比、楼层高度、交易历史、抵押信息
房源描述(1)
-
核心卖点问经纪人
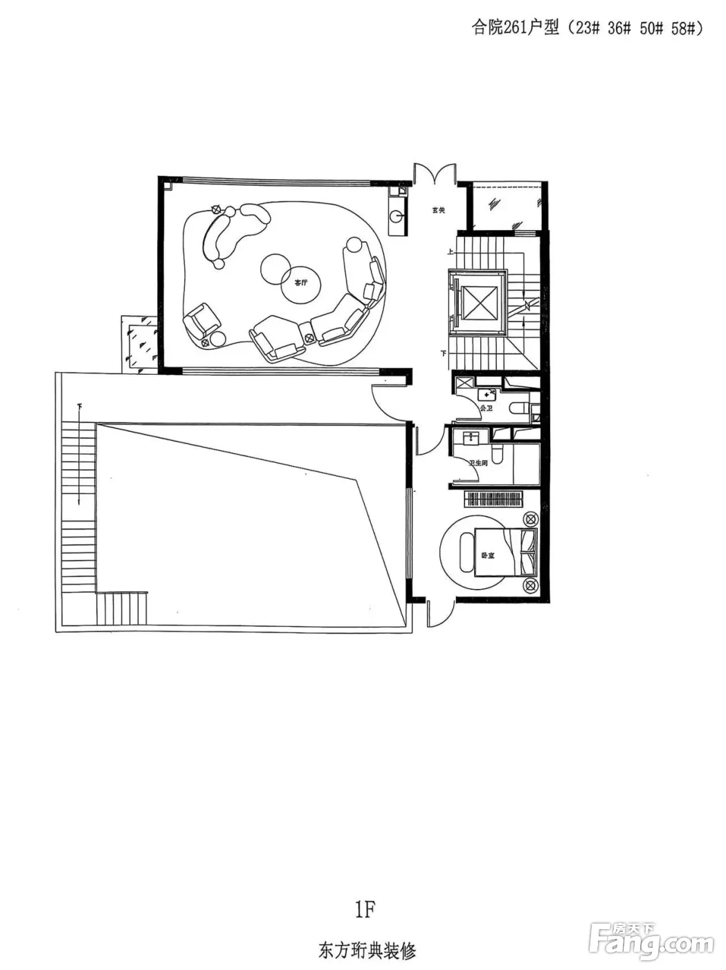
该别墅位于北京顺义中央别墅区后沙峪核心地段,紧邻京顺路与京承高速后沙峪出口,交通便捷通达全城。物业为2025年建成的全新别墅,487平米的超大空间采用南向设计,保证充足采光。建筑为3层结构,配备6室4厅5卫4厨的豪华格局,并带有3个观景阳台,满足大家庭的高品质居住需求。 室内采用豪华装修标准,每个功能分区都经过精心设计,既体现现代居住美学又兼顾实用性能。作为中央别墅区稀缺新房源,61602元/平米的单价在区域内具有显著优势。3000万总价即可拥有487平米的别墅生活空间,无论是品质还是资产配置都是明智之选。
-
业主心态问经纪人
小杜24在线:158.0118.5804.
-
小区配套问经纪人
小区地理位置佳,绿化环境优越整洁,居民素质高,物业管理完善,适宜居住
-
服务介绍问经纪人
只要您需要,我一直都在 小杜24在线:158.0118.5804.
-
税费分析房贷计算
1. 所售房源是新房项目; 2. 交房时只需缴纳正常购房契税,购房成本低,品质很高; 3. 您信任我,我还您满意的家;
周边配套
地址:后沙峪(天竺开发区21号地)京顺路旁,京承高速后沙峪出口
交通综合评分
查看全部5.0
“一般”
超过北京50.2%的小区
-
地铁公交
5.0
-
驾车出行
10.0
猜你喜欢
同小区其它房源
-
52804元/㎡
本月挂牌均价
-
0.22%
环比上月
买房加房产交流群,省钱不踩雷
3000+人正在热聊
加入群聊
- 免费咨询
- 专业服务
- 区域解读
- 户型分析
免责声明:房源信息由网站用户提供,其真实性、合法性由信息提供者负责,最终以政府部门登记备案为准。本网站不声明或保证内容之正确性和可靠性,购买该房屋时,请谨慎核查。入学情况仅凭历史经验总结,在此不承诺升学事宜。请您在签订合同之前,切勿支付任何形式的费用,以免上当受骗。


