6室3厅香山清琴·麓苑
-
3500万
总价
-
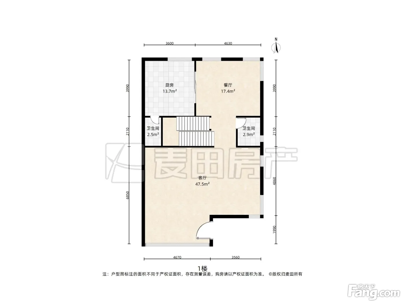
6室3厅4卫
户型
-
326.72㎡
建筑面积
买房加房产交流群,省钱不踩雷
3000+人正在热聊
加入群聊
-
单价
107125元/平米
- 挂牌价格解析
-
楼层
1层
- 咨询楼层
-
套内
暂无数据
- 咨询套内使用面积
-
楼型
独栋
-
朝向
南
-
装修
豪华装修
-
年代
2008
-
发布
2026-01-27
-
地铁
暂无数据
-
咨询总首付
首付约1188万
首付税费及佣金情况 -
深度测评
小区香山清琴麓院(海淀-西山)
-
更多
楼户比、楼层高度、交易历史、抵押信息
房源描述(1)
-
核心卖点问经纪人
相信为您推荐的这套房子您一定会满意,赶快行动吧,先到先得! 房屋年代∶2008年,房屋面积∶326.72平方米,朝向∶正南 1. 小区配备良好物业管理,让你享受宾至如归的服务; 2. 小区人文素质高,是您的居家的品质选择; 3. 小区环境安静舒适,让您拥有高品质的生活环境; 4. 小区绿化高,绿树成荫鸟语花香让您随时呼吸到新鲜空气。
-
小区配套问经纪人
香山清琴·麓苑位于香山脚下,占地25.3万平方米,依山而筑,错落有致,围合庭院,大写意的立面设计,丰富的穿廊灰空间,坡屋顶和平屋顶勾勒起伏的天际线。香山项目位于海淀区四季青乡门头村,西距香炉峰仅800米,临近五环路及多条进京道路,集优美的山水景观、上佳的人文环境和便利的交通条件于一身。
周边配套
地址:北京市海淀区闵庄路80号
交通综合评分
查看全部3.2
“一般”
超过北京22.0%的小区
-
地铁公交
8.0
猜你喜欢
同小区其它房源
-
99134元/㎡
本月挂牌均价
-
0.13%
环比上月
买房加房产交流群,省钱不踩雷
3000+人正在热聊
加入群聊
- 免费咨询
- 专业服务
- 区域解读
- 户型分析
免责声明:房源信息由网站用户提供,其真实性、合法性由信息提供者负责,最终以政府部门登记备案为准。本网站不声明或保证内容之正确性和可靠性,购买该房屋时,请谨慎核查。入学情况仅凭历史经验总结,在此不承诺升学事宜。请您在签订合同之前,切勿支付任何形式的费用,以免上当受骗。


