联系看房:四环宸知筑玺院,地铁旁小2室-大4室都有,看描述
-
1240万
总价
-
4室2厅3卫
户型
-
183㎡
建筑面积
买房加房产交流群,省钱不踩雷
3000+人正在热聊
-
单价
67760元/平米
- 挂牌价格解析
-
楼层
低层/11层
- 咨询楼层
-
套内
182㎡
- 咨询套内使用面积
-
楼型
板楼
-
朝向
南北
-
装修
简装修
-
年代
2027
-
发布
2026-04-19
-
地铁
距14号线大瓦窑站约940米
-
深度测评
小区北京城建·玺院(丰台-青塔)
-
更多
楼户比、楼层高度、交易历史、抵押信息
房源描述(1)
-
核心卖点问经纪人
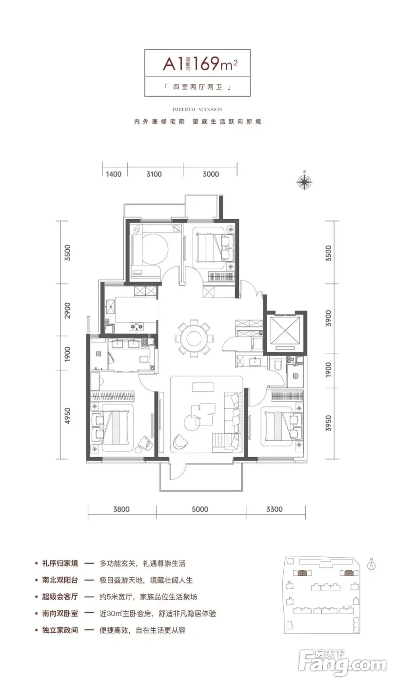
重要提示(您浏览的网页版微聊)正在升级,无法及时收到信息,请直接拨打电话,24在线接听! 联系我,省时省力又省钱,带您买到优惠价房1861.0.5.0.8511 找我,98折的基础上,还能享受额外优惠,欢迎电话咨询: ??85-89㎡东西两居 总价550万起(可选) ??119㎡三居 总价892万起(可选) ??124㎡三居 总价660万起(可选) ??145三居 总价1087万起(可选) ??154㎡四居 总价1200万起(较少) ??163㎡四居 总价1222万起(可选) ??169㎡四居 总价1250万起(可选) ??183㎡四居 总价1350万起(可选) ??192㎡四居 总价1440万起(可选) ??206㎡四居 总价1545万起(可选) ??282㎡四居 总价2110万左右(共11套)
-
业主心态问经纪人
欢迎电话咨询
-
小区配套问经纪人
配套介绍 1. 交通一轨:地铁14号线大瓦窑站约600米 一环:西四环 一高:京港澳高速 三横两纵:横向莲石东路、梅市口路、大成路,纵向小屯路、张仪村路 2. 教育丰台二中附属实验小学、丰台二中、十一学校、丰台一小、丰台五小、北京十二中(科丰校区)、北京十二中(总校区)等 建华学校,小学+初中9年一贯制教育 3. 医疗中国人民解放军301医院、解放军302医院、解放军307医院 、北京市中西医结合医院、朝阳医院西院、天坛医院等 4. 商业五棵松live、龙湖丽泽天街、万达广场、翠微百货等 约4300㎡商业配套 5. 休闲大瓦窑体育公园,绿源公园,天元公园、经仪公园、万丰公园、北京雕塑公
-
服务介绍问经纪人
很高兴您能找到我,以下内容重要,请仔细阅览: 如果您是考虑购房,请您不用再盲目找房,由于网络上充斥的太多的虚 ,包括价格、小区、面积、照片等等,让您浪费了太多的时间,还饱受不敬业的中介的打扰, 所以
-
税费分析房贷计算
关于本房的税费信息情况,请电话联系我,我将详细的为您讲解!
-
户型解读问经纪人
房屋拥有相对宽松的尺寸,布局通透,动静分离,设计豪华
周边配套
本月均价 66172元/m²
环比上月 下跌 1.76%
同比去年 持平 持平
猜你喜欢
同小区其它房源
户型齐全,主打采光充足,客厅朝南四居
北京城建·玺院户型主要有154平-282平的采光充足,客厅朝南的四居 、119平-119平的卧室朝南,主卧朝南的三居 。
*获取完整户型报告,同时会有免费语音讲解服务
-
47624元/㎡
本月挂牌均价
-
0.11%
环比上月
买房加房产交流群,省钱不踩雷
3000+人正在热聊
- 免费咨询
- 专业服务
- 区域解读
- 户型分析

