2100
元/月
押一付三
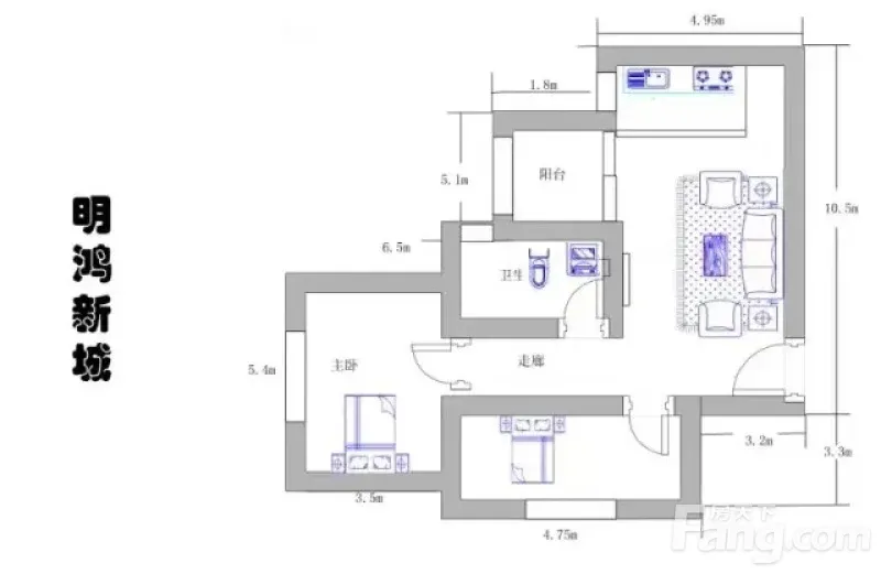
金水枣庄明宏新城 2室2厅 118㎡ 2100元/月
-
2室2厅1卫
整租
-
118㎡
面积
-
中层/7层
楼层
-
西南
朝向
2026-01-15更新
租房不踩坑
3000+人正在热聊
加入群聊
-
看房
-
-
装修
暂无
-
入住
随时入住
-
咨询经纪人,了解更多房源信息
问一问
郑重提示:请您在签订合同之前,切勿支付任何形式的费用,以免上当受骗。
费用明细
-
押一付三
付款方式
-
2100
租金(元/月)
-
***
押金
-
***
服务费
- 房租含取暖费吗?
- 房租含物业费吗?
业主自评
-
笑对酒中影531
加入房天下10天
接电时间:8:00-22:00
一年起租,家具家电齐全,交通方便,禁止养宠物,不允许转租,不租给外国人和老年人。
一年起租,家具家电齐全,交通方便,禁止养宠物,不允许转租,不租给外国人和老年人。
联系业主
免责声明:房源信息由网站用户提供,其真实性、合法性由信息提供者负责,最终以政府部门登记备案为准。本网站内容凡涉及面积单位均为建筑面积,本网站不声明或保证内容之正确性和可靠性,租赁该房屋时,请谨慎核查。

