13500
元/月
押一付三
金地虹桥世家 电梯上叠 精装 简约风格 拎包入住
-
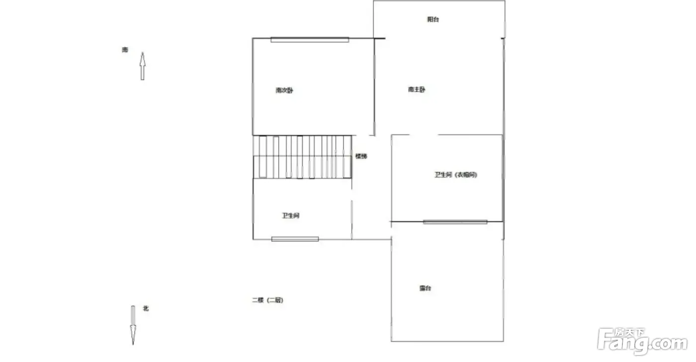
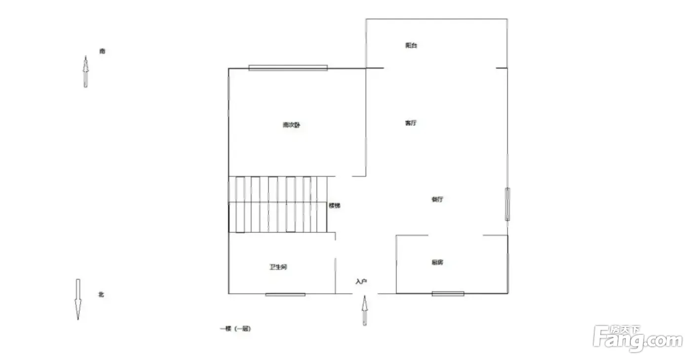
3室2厅3卫
整租
-
130.5㎡
面积
-
底层/4层
楼层
-
南北
朝向
2025-12-29更新
租房不踩坑
3000+人正在热聊
加入群聊
-
看房
随时看房
-
装修
精装修
-
入住
暂无
-
咨询经纪人,了解更多房源信息
问一问
郑重提示:请您在签订合同之前,切勿支付任何形式的费用,以免上当受骗。
费用明细
-
押一付三
付款方式
-
13500
租金(元/月)
-
***
押金
-
***
服务费
- 房租含取暖费吗?
- 房租含物业费吗?
房源描述
-
房源亮点问经纪人
金地虹桥世家电梯上叠 1、面积:129.5平(阁楼另算40平) 2、户型: 3、租金:16000元/月 小区门口公交车徐泾东 ,生活设施齐全(联华超市、夏都小镇、盒马生鲜、芭比馒头、菜市场)等
-
小区配套问经纪人
小区地理位置佳,绿化环境优越整洁,居民素质高,物业管理完善,适宜居住
-
服务介绍问经纪人
本人做房产多年,一直本着专业的房产知识,为您服务,我会在短的时间内帮您租好满意的房子,不让您错失任何好房子,更不让您每天为租房的事烦心,欢迎随时拨打我电话。
-
周边配套问经纪人
周边生活设施齐全,具备车库/车位等基础设施,商店距离近,乘坐公交方便
-
交通出行问经纪人
小区周边具有多条公交线路,出行方便,交通便利
周边配套
地址:高泾路789弄
- 免费咨询
- 专业服务
- 区域解读
- 户型分析
免责声明:房源信息由网站用户提供,其真实性、合法性由信息提供者负责,最终以政府部门登记备案为准。本网站内容凡涉及面积单位均为建筑面积,本网站不声明或保证内容之正确性和可靠性,租赁该房屋时,请谨慎核查。


