海淀区 企业独栋168平纯写出租 廖工庄地铁800米 免中介
-
25200元/月
租金
-
简装修
装修
-
168㎡
建筑面积
租房不踩坑
3000+人正在热聊
加入群聊
-
楼盘名称
四季青生命科学园
-
区域
海淀
-
物业费
暂无
-
类型
纯写字楼
-
等级
暂无
-
挂牌时间
2024-09-10
-
支付方式
押一付三
-
入驻时间
暂无
费用明细
-
押一付三
付款方式
-
25200
租金(元/月)
-
***
押金
-
***
服务费
- 房租含取暖费吗?
- 房租含物业费吗?
房源描述
-
房源亮点问经纪人
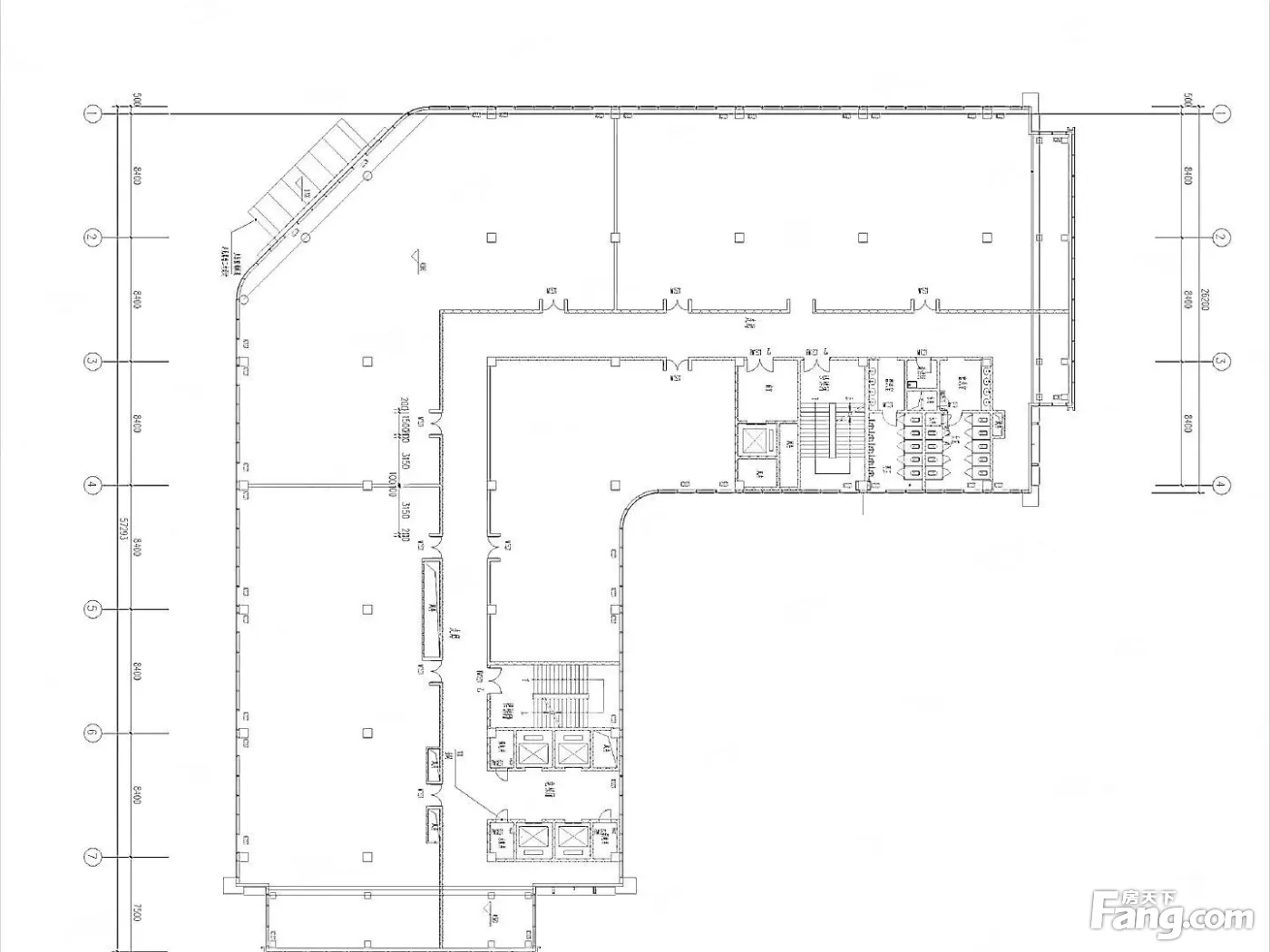
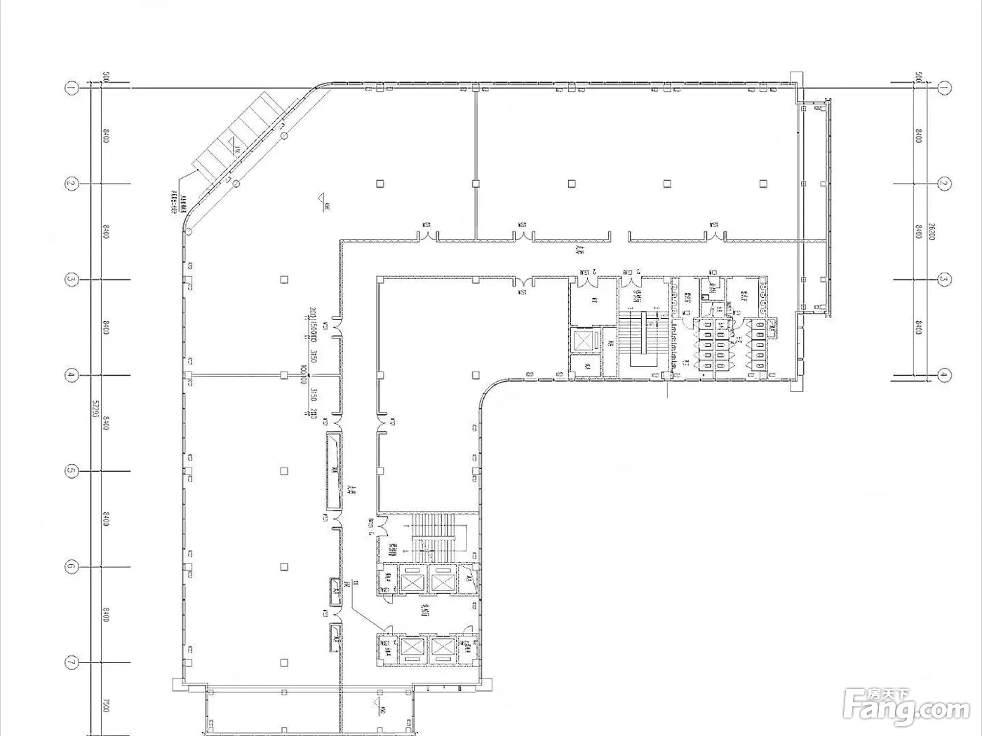
房源亮点楼号:3号楼5层 朝向:南向 使用:可做生物医药室、小试、动物房均可 层高:一层4.5米、标准层4米、顶层4.2米(顶层可做动物房) 载重:一层400KG/㎡ 标准层:200KG/㎡(可增重) 电量:80W/㎡可增容(亦可达到250W/㎡)
-
服务介绍问经纪人
1.全程带您免费看房,为您省时省力! 2.专业团队为您匹配房源,让您省心放心! 3.强大的资源系统让您360度全面了解项目市场! 4.带看、签约、验房、交接全程参与,用无微不至的服务让您满意! 公司投诉电话:13683358065 公司投诉电话:13683358065
-
周边配套问经纪人
配套设施:海淀外国语、海淀凯文 娱乐:燕西台高尔夫球场、锦绣大地体育馆、平庄郊野公园 医院:301医院、首都医科大学附属北京康复医院、四季青敬老院 交通:地铁廖公庄800米 车位:800个
-
交通出行问经纪人
交通优势:交通便利,距廖公庄站仅约800米 产业聚集:打造医药大健康产业集聚高地 产品优势:海淀区企业独栋资源、生物医药室、中试、小试均可。 政策优势:享受中关村海淀园、中关村科学城及镇域多重的优惠政策、成立产业引导基金 服务优势:提供四大服务体系、八大服务平台,包括基础和各专项服务 运营团队:专业化平台运营团队 项目面积:90-16000平,可分割
海淀西山
建成2024年
周边配套
地址:巨山路甲368号
- 免费咨询
- 专业服务
- 区域解读
- 户型分析
免责声明:房源信息由网站用户提供,其真实性、合法性由信息提供者负责,最终以政府部门登记备案为准。本网站内容凡涉及面积单位均为建筑面积,本网站不声明或保证内容之正确性和可靠性,租赁该房屋时,请谨慎核查。

