MAX科技园(北京天竺)独栋2738平至4439平米万科中心
-
4元/平米·天
租金
-
毛坯
装修
-
4439.98㎡
建筑面积
租房不踩坑
3000+人正在热聊
-
楼盘名称
max泰达科技园
-
区域
顺义
-
物业费
9元/平米·月
-
类型
纯写字楼
-
等级
暂无
-
挂牌时间
2024-12-04
-
支付方式
押三付三
-
入驻时间
2023-09-19
费用明细
-
押三付三
付款方式
-
4
租金(元/平米·天)
-
***
押金
-
***
服务费
- 房租含取暖费吗?
- 房租含物业费吗?
房源描述
-
房源亮点问经纪人
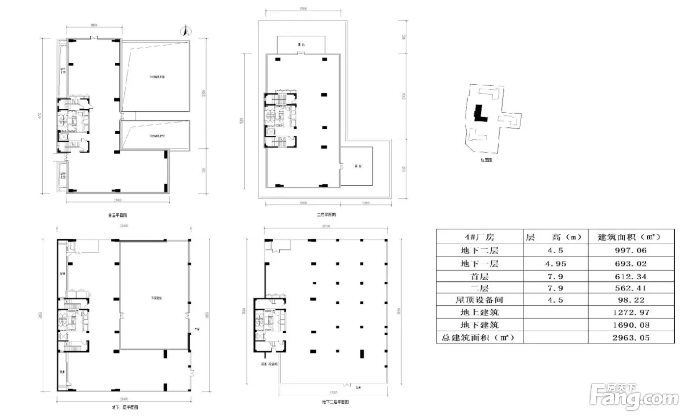
MAX科技园(北京天竺)独栋2738平至4439平米万科中心 用地性质:工业用地 占地面积:1.5万平米 建筑面积:1.6万平米 单栋面积:2738㎡、4203㎡、4409㎡、4439㎡ 出租价格:4元/㎡/天 付款方式:押3付3 签约年限:2-5年 层数:地上2层,地下1层 交付状态:毛坯 层高:首层4.5米,标准层3.9米 使用率:92% 绿化率:26% 柱距:8m*8m 建筑结构:框架结构 楼板承重:标准层300KG/㎡ 空调系统:VRV中央空调 电梯配备:每栋1部电梯 车位数量:地下:190 车位费:450/月/台 供电标准:40w/㎡ 物业管理费:9元/月/平米 消防已完成烟感、喷淋、报警、应急、照明、消防门、消防栓等全系统。 目标客群1.新能源,智能汽车、航空航天、第三代半导体行业,人工智能,产业金融、商务会展、文创旅游跨境电商进出口贸易等行业2.高端文化艺术展馆展厅3.企业总部类型等,上述类型优质企业入驻,可根据企业实际情况享受顺义天竺综合保税区多重优惠政策! 详细信息 MAX科技园(北京天竺)独立-私塾花园-仅此一处,超低密度园区占地23亩地,仅4栋超低密度独栋,尊贵专属稀缺产品,人车分流独立入户门厅,首层私院一下沉式庭院一花园,车位配比充足平均100平/配备/车位,超高使用率达93%外加庭院,50年工业用地性质,针对于符合顺义扶持的企业类型可政策支持。
-
服务介绍问经纪人
本人从事房地产行业多年,涉及北京各区,东城、西城、丰台、昌平、海淀、朝阳,通州、大兴、顺义、亦庄、石景山、门头沟等都有项目,多年的地产经验、已经跟很多业主成为朋友,长期合作,希望能为您提供专业服务。
-
周边配套问经纪人
周边配套: 【商业环境】国泰百货(顺义店)、顺义华联购物中心、新世界百货(顺义店)、国泰商场 【周边医院】:空港医院、南法信医、顺义区妇幼保健院分院、首都国际机场医院、 【金融服务】中国建设银行(顺义支行)、北京银行(顺义支行、中国农业银行(顺义区支行) 【休闲健身】潮白河森林公园、鲜花港、凯旋天成健身会所、北京乡村赛马场 【其他设施】中国邮政,宏瑞御景国际酒店,园区内配备万科驿,可满足企业员工住宿问题,另有餐饮,咖啡,金融等商业配套。
-
交通出行问经纪人
地铁线路:地铁15号线“国展”站约2300米 公交线路:空港3/6/10/13路 顺22/42/65路 850路 955路等多条公交线路等 坐拥机场高速、京承高速、机场第二高速等6条高速公路,京密路、顺平快速路等4条公路
顺义天竺
建成2012年
建筑类型板塔结合
周边配套
- 免费咨询
- 专业服务
- 区域解读
- 户型分析


