B4户型
  • 户型图1/2
  • 户型图2/2
共2张

3室2厅2卫1厨

售完
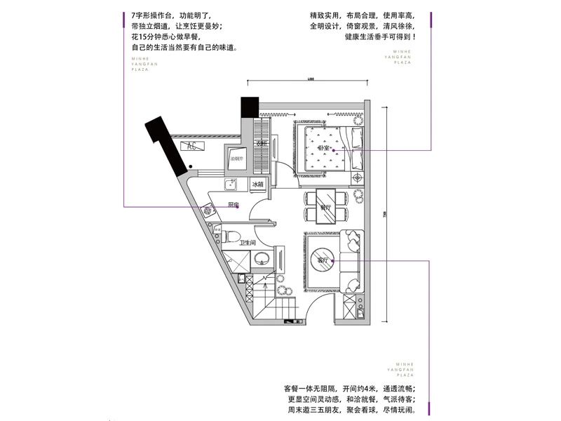
B4户型 | 建面:56㎡ | 朝向:
价格待定算月供
实际价格以售楼处为准,户型图为开发商提供,具体以实际交房标准为准

微信打开

查看完整户型评测
9

户型评分

  • 基础测评
    9

户型信息

  • 34.1㎡

    套内面积

    56㎡

    建筑面积

    -
    21.9㎡

    公摊面积

  • 60.89%

    得房率

    34.1㎡

    套内面积

    ÷
    56㎡

    建筑面积

对此楼盘感兴趣的人还浏览了

查看全部