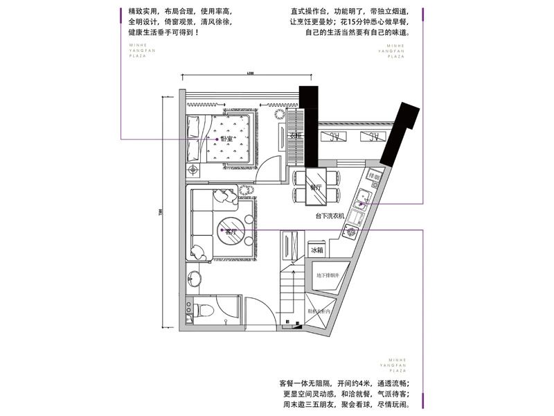
B3户型
  • 户型图1/2
  • 户型图2/2
共2张

3室2厅2卫1厨

售完
B3户型 | 建面:52㎡ | 朝向:
价格待定算月供
实际价格以售楼处为准,户型图为开发商提供,具体以实际交房标准为准

微信打开

查看完整户型评测
9

户型评分

  • 基础测评
    9

对此楼盘感兴趣的人还浏览了

查看全部