紫金花园3室2厅南北
-
80万
总价
-
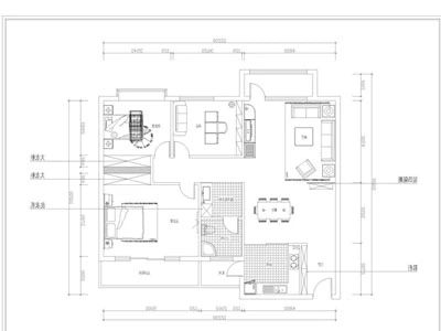
3室2厅
户型
-
134.29㎡
建筑面积
买房加房产交流群,省钱不踩雷
3000+人正在热聊
加入群聊
-
单价
5958元/平米
- 挂牌价格解析
-
楼层
中楼层/12层
- 咨询楼层
-
套内
暂无数据
- 咨询套内使用面积
-
楼型
板楼
-
朝向
南北
-
装修
其他
-
供暖
集中供暖
-
发布
2026-01-20
-
深度测评
小区鱼鸟河小区(牟平-振华)
-
更多
楼户比、楼层高度、交易历史、抵押信息
周边配套
地址:鱼鸟河西路399号
交通综合评分
查看全部7.0
“较好”
超过烟台8.9%的小区
-
地铁公交
10.0
-
驾车出行
10.0
本月均价 4564元/m²
环比上月 下跌 0.6%
同比去年 下跌 4.37%
猜你喜欢
同小区其它房源
户型齐全,主打户型方正,明厨三居
鱼鸟河小区户型主要有121平-159平的户型方正,明厨的三居 、121平-121平的户型方正,明卫,明厨,双阳台的五居 。
*获取完整户型报告,同时会有免费语音讲解服务
买房加房产交流群,省钱不踩雷
3000+人正在热聊
加入群聊
免责声明:房源信息由网站用户提供,其真实性、合法性由信息提供者负责,最终以政府部门登记备案为准。本网站不声明或保证内容之正确性和可靠性,购买该房屋时,请谨慎核查。入学情况仅凭历史经验总结,在此不承诺升学事宜。请您在签订合同之前,切勿支付任何形式的费用,以免上当受骗。



