金海名园 一居室 东朝向 精装修 适合入手
-
29.8万
总价
-
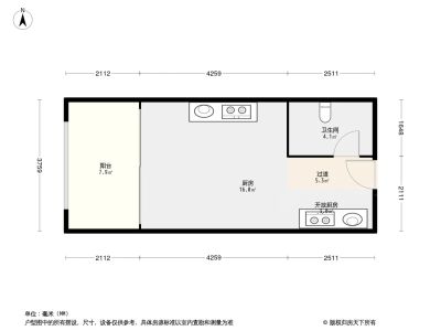
1室1厅
户型
-
40.88㎡
建筑面积
买房加房产交流群,省钱不踩雷
3000+人正在热聊
加入群聊
-
单价
7290元/平米
- 挂牌价格解析
-
楼层
中楼层/24层
- 咨询楼层
-
套内
暂无数据
- 咨询套内使用面积
-
楼型
塔楼
-
朝向
东
-
装修
其他
-
供暖
集中供暖
-
发布
2025-08-13
-
地铁
暂无数据
-
深度测评
小区金海名园(高新区-草埠)
-
更多
楼户比、楼层高度、交易历史、抵押信息
周边配套
地址:区政府西邻(烟台文经学院与莱山一中之间)
交通综合评分
查看全部6.7
“较好”
超过烟台62.2%的小区
-
地铁公交
10.0
-
驾车出行
9.0
本月均价 8095元/m²
环比上月 下跌 1.43%
同比去年 下跌 9.19%
猜你喜欢
同小区其它房源
-
9173元/㎡
本月挂牌均价
-
1.36%
环比上月
买房加房产交流群,省钱不踩雷
3000+人正在热聊
加入群聊
免责声明:房源信息由网站用户提供,其真实性、合法性由信息提供者负责,最终以政府部门登记备案为准。本网站不声明或保证内容之正确性和可靠性,购买该房屋时,请谨慎核查。入学情况仅凭历史经验总结,在此不承诺升学事宜。请您在签订合同之前,切勿支付任何形式的费用,以免上当受骗。



