国贸天琴湾 独栋别墅 后排边套 视野开阔 看房方便 坐北朝
-
6530万
总价
-
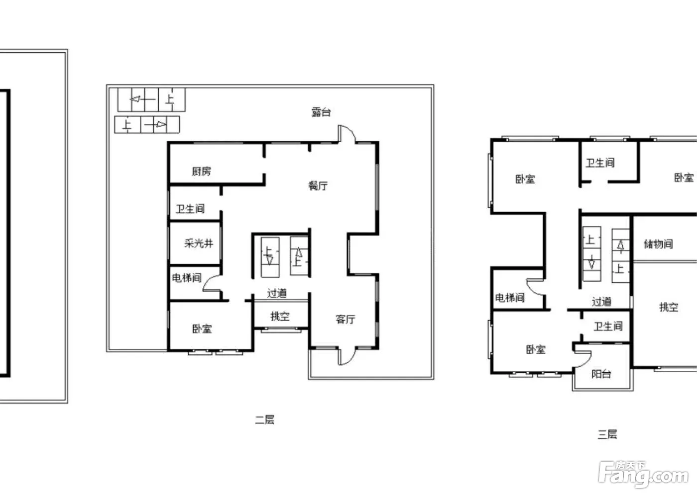
6室2厅4卫
户型
-
456.32㎡
建筑面积
买房加房产交流群,省钱不踩雷
3000+人正在热聊
加入群聊
-
单价
143101元/平米
- 挂牌价格解析
-
楼层
4层
- 咨询楼层
-
套内
暂无数据
- 咨询套内使用面积
-
楼型
独栋
-
朝向
东
-
装修
毛坯
-
年代
2012
-
发布
2025-11-04
-
地铁
距2号线钟宅站约560米
-
深度测评
小区国贸天琴湾别墅(湖里-五缘湾)
-
更多
楼户比、楼层高度、交易历史、抵押信息
房源描述(1)
-
核心卖点问经纪人
产权满二年,独栋别墅,业主诚意卖,看房提前一天约。 此房满两年,契税:首套1.5%,二套2%,三套3%。个税:1.5%。 小区紧挨五缘湾湿地公园,小区绿化面积大,楼间距宽,前后两排错位排开,增加后排的视野,国贸自己的物业,管理完善。门口设有会所,配有游泳池和健身房 小区大门步行约200米就可以到达公交站点(五缘湾消防站),此站点连接岛内外多条线路,总共7条公交线路(652路,105路,641路,49路,433路,439A,439B)。从小区大门往湿地公园行走300米。
-
业主心态问经纪人
房东置换,诚心出售,价格可以再谈,欢迎看房,随时恭候。
-
小区配套问经纪人
位置:小区地理位置佳,绿化率高,居民素质高配套:有健身器材,小型篮球场,可供小区居民使用 车位:停车位充足,建有地上停车场和地下车库 保安:小区内24保安巡逻
-
服务介绍问经纪人
本人从事房地产多年,公司有大量,欢迎进入我的店铺查看,欢迎随时电话咨询,相信我的专业,为您置业保驾护航。
周边配套
地址:五缘湾片区内湾西侧,环湾路东侧
交通综合评分
查看全部5.5
“一般”
超过厦门81.0%的小区
-
地铁公交
10.0
-
城际交通
5.0
-
56821元/㎡
本月挂牌均价
-
1.96%
环比上月
买房加房产交流群,省钱不踩雷
3000+人正在热聊
加入群聊
- 免费咨询
- 专业服务
- 区域解读
- 户型分析
免责声明:房源信息由网站用户提供,其真实性、合法性由信息提供者负责,最终以政府部门登记备案为准。本网站不声明或保证内容之正确性和可靠性,购买该房屋时,请谨慎核查。入学情况仅凭历史经验总结,在此不承诺升学事宜。请您在签订合同之前,切勿支付任何形式的费用,以免上当受骗。


