正南恒信熙湖名筑4室2厅
-
175万
总价
-
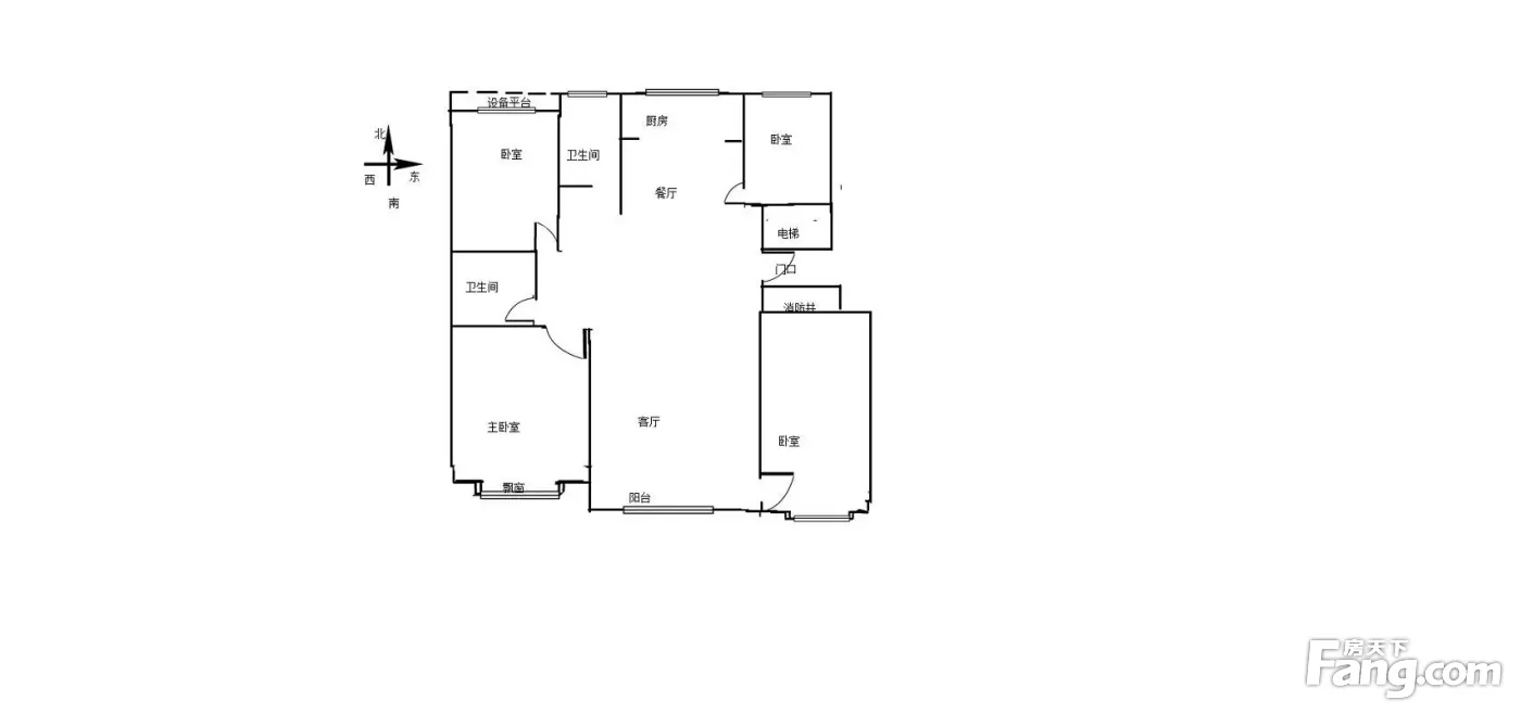
4室2厅2卫
户型
-
166.79㎡
建筑面积
-
单价
10492元/平米
- 挂牌价格解析
-
楼层
低层/17层
- 咨询楼层
-
套内
166.08㎡
- 咨询套内使用面积
-
楼型
板楼
-
朝向
南
-
装修
毛坯
-
年代
2021
-
发布
2025-07-17
-
地铁
暂无数据
-
深度测评
小区恒信熙湖名筑(奎文-新华路佳乐家)
-
更多
楼户比、楼层高度、交易历史、抵押信息
房源描述(1)
-
核心卖点问经纪人
相信为您推荐的这套房子您一定会满意,赶快行动吧,先到先得! 房屋年代∶2021,面积∶166.79平方米,朝向∶南 1. 小区配备高端物业管理,让你享受宾至如归的服务; 2. 小区人文素质高,是您的居家的绝佳选择; 3. 小区居住安静舒适,让您拥有高品质的生活环境; 4. 小区绿化率高,绿树成荫鸟语花香让您随时呼吸到新鲜空气。
周边配套
地址:新华路与东风街交汇处南300米路东(佳乐家对面)
本月均价 10756元/m²
环比上月 下跌 3.14%
同比去年 下跌 11.11%
猜你喜欢
同小区其它房源
户型齐全,主打南北通透,全明格局,户型方正,动静分离,采光充足四居
恒信熙湖名筑户型主要有142平-286平的南北通透,全明格局,户型方正,动静分离,采光充足的四居 。
*获取完整户型报告,同时会有免费语音讲解服务
-
7023元/㎡
本月挂牌均价
-
持平
环比上月
- 免费咨询
- 专业服务
- 区域解读
- 户型分析
免责声明:房源信息由网站用户提供,其真实性、合法性由信息提供者负责,最终以政府部门登记备案为准。本网站不声明或保证内容之正确性和可靠性,购买该房屋时,请谨慎核查。入学情况仅凭历史经验总结,在此不承诺升学事宜。请您在签订合同之前,切勿支付任何形式的费用,以免上当受骗。

