张面河旁三四楼复式 枫丹壹号院 5室2厅 豪华装修
-
528万
总价
-
5室2厅3卫
户型
-
230㎡
建筑面积
-
单价
22957元/平米
- 挂牌价格解析
-
楼层
3层
- 咨询楼层
-
套内
暂无数据
- 咨询套内使用面积
-
楼型
独栋
-
朝向
南
-
装修
豪华装修
-
年代
2018
-
发布
2025-07-17
-
地铁
暂无数据
-
深度测评
小区枫丹壹号院(高新-市府东南区域)
-
更多
楼户比、楼层高度、交易历史、抵押信息
房源描述(1)
-
核心卖点问经纪人
相信为您推荐的这套房子您一定会满意,赶快行动吧,先到先得! 房屋年代∶2018年,房屋面积∶230平方米,朝向∶正南 1. 小区配备良好物业管理,让你享受宾至如归的服务; 2. 小区人文素质高,是您的居家的品质选择; 3. 小区环境安静舒适,让您拥有高品质的生活环境; 4. 小区绿化高,绿树成荫鸟语花香让您随时呼吸到新鲜空气。
周边配套
地址:金马路与健康街交汇处南500米路东(涨湎河北岸)
交通综合评分
查看全部4.0
“一般”
超过潍坊84.7%的小区
-
地铁公交
10.0
猜你喜欢
同小区其它房源
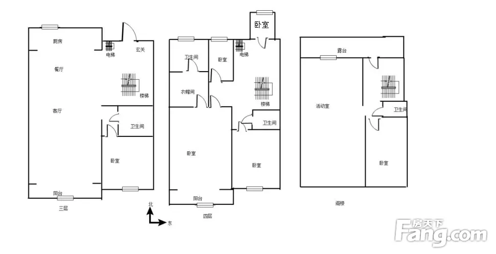
户型齐全,主打南北通透,户型方正四居
枫丹壹号院(别墅)户型主要有140平-305平的南北通透,户型方正的四居 、110平-147平的南北通透,全明格局的三居 、233平-234平的南北通透,全明格局,户型方正,客厅朝南,卧室朝南,三开间朝南,主卧带卫的五居 。
*获取完整户型报告,同时会有免费语音讲解服务
-
8265元/㎡
本月挂牌均价
-
持平
环比上月
- 免费咨询
- 专业服务
- 区域解读
- 户型分析
免责声明:房源信息由网站用户提供,其真实性、合法性由信息提供者负责,最终以政府部门登记备案为准。本网站不声明或保证内容之正确性和可靠性,购买该房屋时,请谨慎核查。入学情况仅凭历史经验总结,在此不承诺升学事宜。请您在签订合同之前,切勿支付任何形式的费用,以免上当受骗。

