恒信茉莉公馆4室3厅豪华装修一楼带院子
-
285万
总价
-
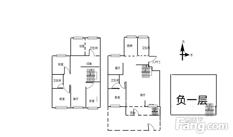
4室3厅4卫
户型
-
137㎡
建筑面积
-
单价
20803元/平米
- 挂牌价格解析
-
楼层
底层/9层
- 咨询楼层
-
套内
暂无数据
- 咨询套内使用面积
-
楼型
板楼
-
朝向
南北
-
装修
豪华装修
-
年代
2017
-
发布
2025-07-16
-
地铁
暂无数据
-
深度测评
小区恒信茉莉公馆(坊子-坊子新区)
-
更多
楼户比、楼层高度、交易历史、抵押信息
房源描述(1)
-
核心卖点问经纪人
相信为您推荐的这套房子您一定会满意,赶快行动吧,先到先得! 房屋年代∶2017,面积∶137.0平方米,朝向∶南北 1. 小区配备高端物业管理,让你享受宾至如归的服务; 2. 小区人文素质高,是您的居家的绝佳选择; 3. 小区居住安静舒适,让您拥有高品质的生活环境; 4. 小区绿化率高,绿树成荫鸟语花香让您随时呼吸到新鲜空气。
-
业主心态问经纪人
业主很信任我,我能了解业主卖房新的动态。目前市场交易量平稳,不要错过好房
-
小区配套问经纪人
1、经典户型,户型方正!采光好! 2、交通便利,出行方便。 3、配套齐全、医院、超市方便! 4、小区环境优美,绿化好、物业管理到位! 5、小区人车分流,带有地下停车场。
-
服务介绍问经纪人
本人从事房地产多年,公司有大量好房源,欢迎进入我的店铺查看,欢迎随时电话咨询,相信我的专业,为您置业安家保驾护航。我电话同号
-
税费分析房贷计算
税费分析新房: 房税费首套房契税1至3个点。 购买新房主要税费: 契税:90平以内:1% ;90-124 平收1.5%;124平以上收2%(交房后地税收取) 注:以上收费仅供参考
周边配套
交通综合评分
查看全部超过潍坊72.9%的小区
-
地铁公交
10.0
本月均价 7285元/m²
环比上月 下跌 0.7%
同比去年 下跌 6.45%
猜你喜欢
同小区其它房源
户型齐全,主打户型方正,明卫,明厨三居
恒信茉莉公馆户型主要有90平-135平的户型方正,明卫,明厨的三居 、136平-232平的户型方正,明厨,明卫,客厅朝南,主卧朝南的四居 、200平-200平的卧室朝南,主卧朝南的五居 。
*获取完整户型报告,同时会有免费语音讲解服务
-
5405元/㎡
本月挂牌均价
-
持平
环比上月
- 免费咨询
- 专业服务
- 区域解读
- 户型分析

