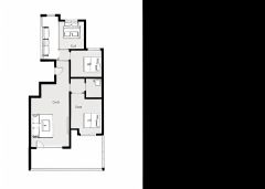
洋房阳面客厅 南北通格局 明厨明毛坯房随意装修
-
180万
总价
-
5室2厅
户型
-
190.43㎡
建筑面积
买房加房产交流群,省钱不踩雷
3000+人正在热聊
加入群聊
-
单价
9453元/平米
- 挂牌价格解析
-
楼层
中楼层/6层
- 咨询楼层
-
套内
暂无数据
- 咨询套内使用面积
-
楼型
板塔结合
-
朝向
南北
-
装修
其他
-
供暖
集中供暖
-
发布
2021-01-10
-
地铁
暂无数据
-
深度测评
小区中建城(丰润-丰润新区)
-
更多
楼户比、楼层高度、交易历史、抵押信息
周边配套
地址:林荫路与公园道交汇处(原体育场对过)
交通综合评分
查看全部4.0
“一般”
超过唐山1.7%的小区
-
地铁公交
10.0
本月均价 7887元/m²
环比上月 下跌 0.77%
同比去年 下跌 3.11%
猜你喜欢
同小区其它房源
户型齐全,主打南北通透,户型方正,客厅朝南,主卧朝南,全明格局三居
中建城户型主要有106平-156平的南北通透,户型方正,客厅朝南,主卧朝南,全明格局的三居 、87平-108平的户型方正,客厅朝南,主卧朝南的二居 、137平-310平的南北通透,主卧带卫,户型方正,客厅朝南,主卧朝南,全明格局的四居 。
*获取完整户型报告,同时会有免费语音讲解服务
-
6556元/㎡
本月挂牌均价
-
0.1%
环比上月
买房加房产交流群,省钱不踩雷
3000+人正在热聊
加入群聊
免责声明:房源信息由网站用户提供,其真实性、合法性由信息提供者负责,最终以政府部门登记备案为准。本网站不声明或保证内容之正确性和可靠性,购买该房屋时,请谨慎核查。入学情况仅凭历史经验总结,在此不承诺升学事宜。请您在签订合同之前,切勿支付任何形式的费用,以免上当受骗。



