河北二片 全阳两室 私产 四楼 可贷款 满五年
-
45万
总价
-
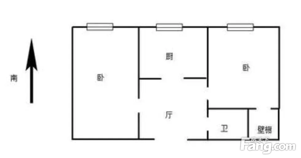
2室1厅1卫
户型
-
44.3㎡
建筑面积
买房加房产交流群,省钱不踩雷
3000+人正在热聊
-
单价
10158元/平米
- 挂牌价格解析
-
楼层
高层/5层
- 咨询楼层
-
套内
43㎡
- 咨询套内使用面积
-
楼型
砖混
-
朝向
南
-
装修
简装修
-
年代
1995
-
发布
2026-03-17
-
地铁
距3号线铁东路站约1112米
-
咨询总首付
首付约11.8万
首付税费及佣金情况 -
深度测评
小区建北里(河北-建昌道)
-
更多
楼户比、楼层高度、交易历史、抵押信息
房源描述(1)
-
核心卖点问经纪人
1、天津市国营房产公司保驾护航,手续简单,即刻落戸。 2、户型方正,设计合理,没有任何浪费面积。 3、4层(5层)房龄新,适合落戸,户型格局好用 私产可贷款 4、戸口属于河北区,天津市区戸口, 初/中可摇号 河北二片(河北区初/中转/学无影响) 一梯队(综合实力较强) 天津外国语附属河北外国语:2021年成立的公办完全,硬件设施完善,注重英语教学,管理严格,是二片热门一志愿校。 第五十七:始建于1939年的,教学设施先进,体育成绩突出,但近年整体口碑稍逊于外国语。 二梯队(中规中矩) 第三十五:1949年成立的初级,师资稳定,管理规范,二志愿摇中率较高。 红光:由杨成武将军创办的子弟,现为藏汉学生共读的民族示范校,近年成绩有所提升。 PS: 完全中/学是涵盖了初/中和高/中两个阶段的 私立 : 汇森 和 博文 5、我司属于国营房产公司,另有特惠房(无中阶費和过户税費)如需了解详情,请与我联系。 可+微13672O55OO4 了解更多房源信息。
-
业主心态问经纪人
温馨提示: 我司《氵聿房置换有限责任公司》是天津一家,国营房公司。 属于公产房,部分企业产房办理过户手续的企业单位。 有部分房源属于特惠房,特惠房不收取中阶費。 详情请与我联系。 微: elvsong-yy 13672O55OO4
-
小区配套问经纪人
:河北十三幼、天津市河北区王串场街、河北区扶轮中:天津市河北区连云路、红光、天津市新纪元、铁路三中:天津职业商场:津工市、物美便利市、桥园综合市医院:安康医院、建昌医院邮局:红星路邮电支局银行:中国建设银行民权门储蓄所、中国银行天津建昌道支行其他:红源餐厅、江南包子、辉煌酒家\民权门综合批发市场小区内部配套:一户一表、煤气、暖气、电话线预留口 交通介绍:公交:303路、679路、675路、903路、646路、633路
-
服务介绍问经纪人
天津市氵聿房置换有限责任公司 国有房经纪企业 置业经理 张擎:①③⑥⑦②零⑤⑤零零④(可+微) 中阶費 1% 或 不收取中阶費
-
税费分析房贷计算
税费主要包括,契税和个人所得税,具体收费标准需了解房子和购房人的详细情况而定,可联系我为您详细介绍房源的税费信息。 (我司有特惠落戶房,无中阶費,详情可联系我)
周边配套
交通综合评分
查看全部超过天津65.6%的小区
-
地铁公交
10.0
-
驾车出行
10.0
-
城际交通
5.0
本月均价 11087元/m²
环比上月 下跌 1.5%
同比去年 下跌 20.17%
猜你喜欢
同小区其它房源
-
14829元/㎡
本月挂牌均价
-
0.38%
环比上月
买房加房产交流群,省钱不踩雷
3000+人正在热聊
- 免费咨询
- 专业服务
- 区域解读
- 户型分析

